Valutazione immobiliare indipendente, accurata e gratuita
Appartamento in vendita a Pescantina a 195.000 € (cod.651eb495)
Caasa non ha sufficienti informazioni per commentare l'appartamento in vendita a Pescantina - 651eb495.
Analisi immobiliare
I dati in posseso di Caasa per quest'immobile sono insufficienti, inaffidabili o contraddittori per proporre un'analisi attendibile.
Mercato immobiliare a Pescantina
Per quanto riguarda più in generale la città di Pescantina, sono presenti al momento più di 150 annunci per
appartamenti in vendita (meno del 5% dell'intera provincia)
e il maggior numero di annunci per questa tipologia sono relativi alla zona di Balconi.
Relativamente alla dinamica dei prezzi, possiamo dire che negli ultimi 6 mesi i prezzi medi in tutta la città per appartamenti in vendita sono
in forte aumento (+11,35%).
NOVITÀ Il risultato che vedi dipende dai dati che siamo riusciti ad estrarre dall'annuncio: ottieni una stima più accuranta di questo immobile, inserendo dati più precisi.
N.B. L'Opinione di Caasa® è un servizio sperimentale realizzato tramite tecniche di Intelligenza Artificiale, fornito senza alcuna garanzia di correttezza e completezza. Leggi il disclaimer o segnalaci un problema.
IMMAGINI
IN SINTESI
DESCRIZIONE
di nuova costruzione con posto auto di nuova costruzione con terrazza con termocondizionamento con riscaldamento autonomo con angolo cottura senza ascensore
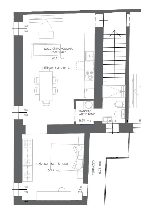
PESCANTINA - NUOVO CANTIERE IN CONSEGNA NEL 2027 ZONA E CONTESTO Nel cuore della parte storica di Pescantina, a pochi passi dai principali servizi del paese, scuole, negozi, farmacia, parchi e mezzi pubblici, sorgerà Residenza 'I Pellami', un progetto esclusivo di riqualificazione e nuova edificazione. L'intervento nasce dalla volontà di valorizzare un antico edificio, trasformandolo in una residenza moderna, efficiente e dal design ricercato, perfettamente inserita nel contesto storico. APPARTAMENTO 4. L'unità n.4 è un comodo bilocale al primo piano, ideale per chi cerca praticità e ambienti ben distribuiti. La zona giorno con cucina a vista, di 28 mq, è luminosa e funzionale, perfetta per un living moderno e accogliente. La zona notte è composta da un bagno ben organizzato e da una camera matrimoniale di 15 mq, facilmente arredabile. A completare la soluzione, un pratico terrazzo di quasi 7 mq. IL PROGETTO Il cantiere, con inizio lavori previsto per il 2026 e consegna entro inizio 2027, prevede la realizzazione di 8 appartamenti distribuiti su tre livelli: - 2 unità al piano terra - 3 unità al primo piano - 3 unità al secondo piano L'architettura combina stile contemporaneo e richiami storici, con particolare attenzione alla qualità costruttiva e all'efficienza energetica. Le finiture previste sono di alto livello come: riscaldamento a pavimento, impianto fotovoltaico, aria condizionata, infissi in triplo vetro, domotica e portoncino blindato. (Capitolato dettagliato visionabile su richiesta). Possibilità di acquistare posto auto scoperto all'interno della corte




