Valutazione immobiliare indipendente, accurata e gratuita
Appartamento in vendita a Nogara in zona Brancon a 88.000 € (cod.64e85197)
Caasa non ha sufficienti informazioni per commentare l'appartamento in vendita a Nogara in zona Brancon - 64e85197.
Analisi immobiliare
I dati in posseso di Caasa per quest'immobile sono insufficienti, inaffidabili o contraddittori per proporre un'analisi attendibile.
Mercato immobiliare a Nogara
Per quanto riguarda più in generale il comune di Nogara, sono presenti al momento circa cento annunci per
appartamenti in vendita (meno del 5% dell'intera provincia)
e il maggior numero di annunci per questa tipologia sono relativi alla zona di Caselle, mentre la zona di Brancon risulta molto meno attiva considerando il numero di annunci presenti.
La dinamica dei prezzi in tutto il comune mostra che negli ultimi 6 mesi, i prezzi per appartamenti in vendita sono
in debole diminuzione (-1,53%).
NOVITÀ Il risultato che vedi dipende dai dati che siamo riusciti ad estrarre dall'annuncio: ottieni una stima più accuranta di questo immobile, inserendo dati più precisi.
N.B. L'Opinione di Caasa® è un servizio sperimentale realizzato tramite tecniche di Intelligenza Artificiale, fornito senza alcuna garanzia di correttezza e completezza. Leggi il disclaimer o segnalaci un problema.
IMMAGINI
IN SINTESI
PROPOSTO DA:
URBANIA SNC DI TOGNOLO MIRKO E DUSI NICOLA
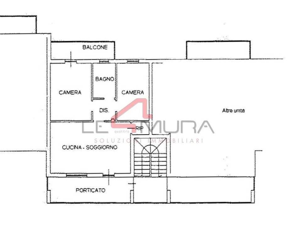
DESCRIZIONE
con posto auto con garage con cantina con terrazza con balcone
NOGARA: Nella frazione di Brancon, a soli 3 km dal centro del paese, proponiamo in vendita un accogliente trilocale posto al primo ed ultimo piano con ingresso condiviso da sole 4 unità. L'appartamento, di metratura contenuta ma ben distribuita ideale per single o coppie che desiderano un'abitazione funzionale e facilmente gestibile, presenta una zona giorno in open-space servita da un terrazzino coperto ideale per pranzi e cene all'aperto, due camere da letto di cui una matrimoniale ed una singola, servizio con vasca ed angolo lavanderia, ripostiglio ed ulteriore balcone nella zona notte. Completa la proprietà una cantina ed un ampio garage doppio al piano seminterrato. Spese condominiali contenute. Classe Energetica: D

