Valutazione immobiliare indipendente, accurata e gratuita
Casale in vendita a Montecchia di Crosara a 60.000 € (cod.64f64b3b)
Caasa non ha sufficienti informazioni per commentare il casale in vendita a Montecchia di Crosara - 64f64b3b.
	Analisi immobiliare
	
	I dati in posseso di Caasa per quest'immobile sono insufficienti, inaffidabili o contraddittori per proporre un'analisi attendibile.
	
	Mercato immobiliare a Montecchia di Crosara
	
	Per quanto riguarda più in generale il comune di Montecchia di Crosara, sono presenti al momento più di dieci annunci per 
		casali in vendita (meno dell'1% dell'intera provincia) .
	
	
NOVITÀ Il risultato che vedi dipende dai dati che siamo riusciti ad estrarre dall'annuncio: ottieni una stima più accuranta di questo immobile, inserendo dati più precisi.
N.B. L'Opinione di Caasa® è un servizio sperimentale realizzato tramite tecniche di Intelligenza Artificiale, fornito senza alcuna garanzia di correttezza e completezza. Leggi il disclaimer o segnalaci un problema.
IMMAGINI
IN SINTESI
PROPOSTO DA:
IMMOBILIARE TIZIAN
DESCRIZIONE
di recente ristrutturazione con termocondizionamento di recente ristrutturazione con cucina abitabile
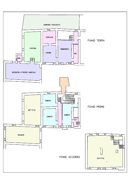
In vendita a Montecchia di Crosara, in posizione angolare, proponiamo un rustico/casale di ampia metratura. L'immobile si sviluppa su tre livelli, per un totale di 496 mq ed ulteriori mq 112 su due livelli. All'interno tre camere da letto e una cucina abitabile. Le condizioni attuali richiedono una ristrutturazione completa, ed il riscaldamento è attualmente inesistente. L'ingresso è indipendente, offrendo privacy e autonomia. Questa è un'opportunità ideale per chi cerca un progetto da personalizzare secondo i propri gusti e necessità. Chiamaci!! Classe Energetica: F
 
                         
                               
                               
                               
                               
                               
                               
                               
                               
                               
                               
                               
                               
                              




