Valutazione immobiliare indipendente, accurata e gratuita
Negozio in vendita a Lazise in zona Pacengo (cod.657e160b)
Caasa non ha sufficienti informazioni per commentare il negozio in vendita a Lazise in zona Pacengo - 657e160b.
Analisi immobiliare
I dati in posseso di Caasa per quest'immobile sono insufficienti, inaffidabili o contraddittori per proporre un'analisi attendibile.
Mercato immobiliare a Lazise
Per quanto riguarda più in generale il comune di Lazise, sono presenti al momento più di venti annunci per
negozi in vendita (meno del 5% dell'intera provincia)
e il maggior numero di annunci per questa tipologia sono relativi alla zona di Colà, mentre la zona di Pacengo risulta molto meno attiva considerando il numero di annunci presenti.
Vedi altre informazioni direttamente su
Mercato-Immobiliare.info
NOVITÀ Il risultato che vedi dipende dai dati che siamo riusciti ad estrarre dall'annuncio: ottieni una stima più accuranta di questo immobile, inserendo dati più precisi.
N.B. L'Opinione di Caasa® è un servizio sperimentale realizzato tramite tecniche di Intelligenza Artificiale, fornito senza alcuna garanzia di correttezza e completezza. Leggi il disclaimer o segnalaci un problema.
IMMAGINI
IN SINTESI
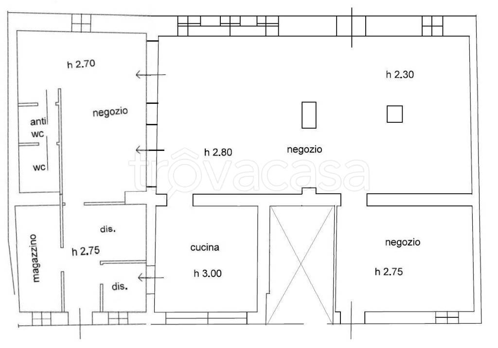
DESCRIZIONE
Nel cuore autentico del comune di Lazise, nella pittoresca frazione di Pacengo, a soli 500 metri dalle splendide rive del Lago di Garda, proponiamo in vendita un caratteristico locale commerciale al piano strada attualmente adibito a bar–ristorante, situato in posizione strategica di forte passaggio, proprio accanto a un comodo parcheggio pubblico. Una location che garantisce visibilità, accessibilità e un flusso costante di clientela locale e turistica. L’immobile conquista al primo sguardo grazie agli affascinanti soffitti a doppia volta e alle finiture che fondono sapientemente il fascino rustico con elementi classici. Un ambiente caldo, accogliente e versatile, perfetto per creare atmosfere ricercate: dal ristorante intimo al wine-bar o la birreria ma anche un elegante negozio o concept store. La proprietà viene venduta completa di arredi, attrezzature professionali e licenze per la somministrazione di cibi e bevande. La cucina, funzionale e completamente attrezzata, è ben organizzata e pronta all’operatività. Un’attività pronta all’uso, ideale per chi desidera iniziare da subito o per chi cerca un investimento sicuro da mettere a reddito. Un’occasione immobiliare di grande interesse, in una delle zone più amate del Garda, con un prezzo altamente competitivo. Segnaliamo inoltre la possibilità di acquisto di un’abitazione adiacente per chi ha necessità di una residenza comoda al locale o di un alloggio per i collaboratori. Ulteriori informazioni e prezzo disponibili esclusivamente in agenzia

