Valutazione immobiliare indipendente, accurata e gratuita
Casa indipendente in vendita a Garda a 1.440.000 € (cod.658b140e)
Caasa non ha sufficienti informazioni per commentare la casa indipendente in vendita a Garda - 658b140e.
Analisi immobiliare
I dati in posseso di Caasa per quest'immobile sono insufficienti, inaffidabili o contraddittori per proporre un'analisi attendibile.
Mercato immobiliare a Garda
Per quanto riguarda più in generale il comune di Garda, sono presenti al momento circa cento annunci per
case indipendenti in vendita (meno del 5% dell'intera provincia) .
Possiamo inoltre considerare che in tutto il comune negli ultimi 6 mesi, i prezzi per case indipendenti in vendita sono
sostanzialmente stabili (-0,65%).
NOVITÀ Il risultato che vedi dipende dai dati che siamo riusciti ad estrarre dall'annuncio: ottieni una stima più accuranta di questo immobile, inserendo dati più precisi.
N.B. L'Opinione di Caasa® è un servizio sperimentale realizzato tramite tecniche di Intelligenza Artificiale, fornito senza alcuna garanzia di correttezza e completezza. Leggi il disclaimer o segnalaci un problema.
IMMAGINI
IN SINTESI
DESCRIZIONE
di recente ristrutturazione con posto auto con terrazza con giardino con cantina con balcone di recente ristrutturazione con cucina abitabile
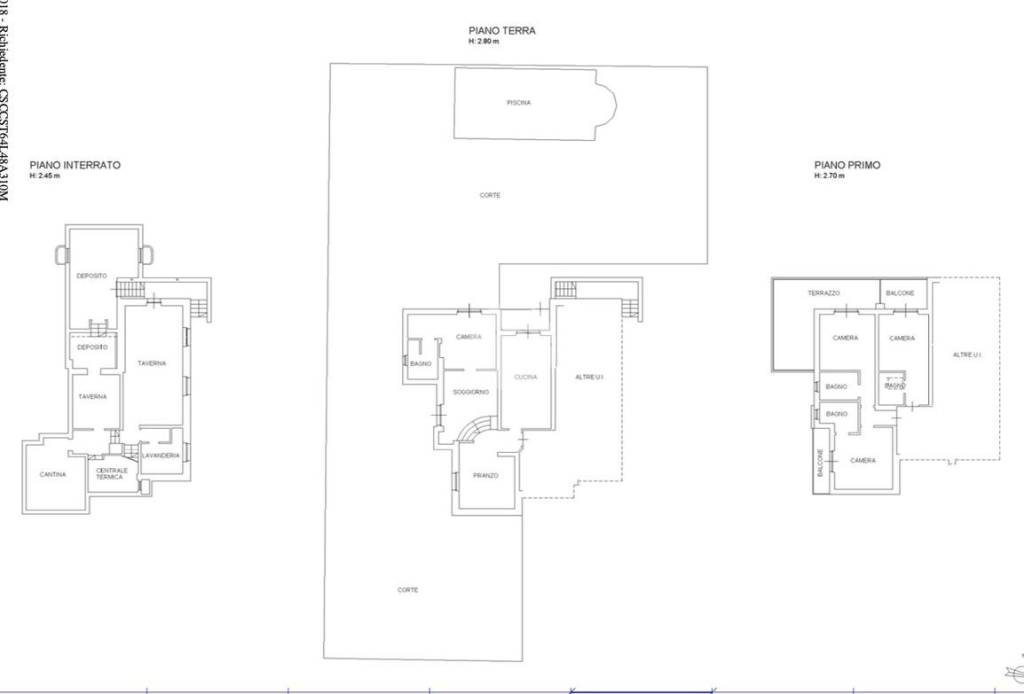
Villa singola con piscina – ideale come B&B o residenza di pregio – Garda (VR) In posizione tranquilla e riservata, zona interna di Garda, proponiamo villa singola di ampia metratura con giardino privato e piscina di 50 mq, perfetta sia come residenza esclusiva sia come struttura ricettiva.La proprietà dispone di 8 posti auto, di cui 2 coperti, e si sviluppa su più livelli, con una distribuzione degli spazi estremamente funzionale. Composizione interna: Piano Terra Trilocale indipendente. Appartamento padronale composto da: cucina abitabile, sala da pranzo, soggiorno, camera matrimoniale con bagno privato Piano Primo Trilocale indipendente. Ulteriori 3 camere da letto, ciascuna con bagno privato.Ogni unità è dotata di balcone o terrazzo indipendente con affaccio diretto sulla piscina, garantendo privacy e comfort per ogni ospite o nucleo abitativo. Piano Interrato (circa 130 mq): sala colazioni, cucina, lavanderia, deposito attrezzature-locale tecnico piscina, bagno, centrale termica, cantina. Dal piano interrato si accede direttamente al giardino tramite scala interna. Plus dell’immobile Utilizzata per anni come B&B, con spazi e distribuzione già ottimizzati per l’attività Ristrutturazione e ampliamento nel 2014 Cappotto termico integrale Impianto fotovoltaico (6KW) con possibilità di raggiungere la classe A tramite sostituzione dell’attuale caldaia Ideale per: Continuare l’attività di Bed & Breakfast / struttura ricettiva Realizzare una villa multifamiliare Abitazione privata di prestigio con dependance Una soluzione unica nel suo genere, a pochi minuti dal Lago di Garda ma lontana dal traffico del lungolago, perfetta per chi cerca tranquillità, spazio e redditivit


