Valutazione immobiliare indipendente, accurata e gratuita
Terreno edificabile a Costermano sul Garda in zona Albarè a 60.000 € (cod.65784802)
Caasa non ha sufficienti informazioni per commentare il terreno edificabile a Costermano sul Garda Albarè - 65784802.
Analisi immobiliare
I dati in posseso di Caasa per quest'immobile sono insufficienti, inaffidabili o contraddittori per proporre un'analisi attendibile.
Mercato immobiliare a Costermano sul Garda
Per quanto riguarda più in generale il comune di Costermano sul Garda, sono presenti al momento più di venti annunci per
terreni edificabili in vendita (meno dell'1% dell'intera provincia)
e il maggior numero di annunci per questa tipologia sono relativi proprio alla zona di Albarè.
Vedi altre informazioni direttamente su
Mercato-Immobiliare.info
NOVITÀ Il risultato che vedi dipende dai dati che siamo riusciti ad estrarre dall'annuncio: ottieni una stima più accuranta di questo immobile, inserendo dati più precisi.
N.B. L'Opinione di Caasa® è un servizio sperimentale realizzato tramite tecniche di Intelligenza Artificiale, fornito senza alcuna garanzia di correttezza e completezza. Leggi il disclaimer o segnalaci un problema.
IMMAGINI
IN SINTESI
PROPOSTO DA:
AGENZIA IMMOBILIARE, VERONA - PORTA PALIO -
DESCRIZIONE
di recente costruzione con posto auto con garage con giardino con angolo cottura con termocondizionamento con balcone di recente costruzione con riscaldamento autonomo in asta giudiziaria
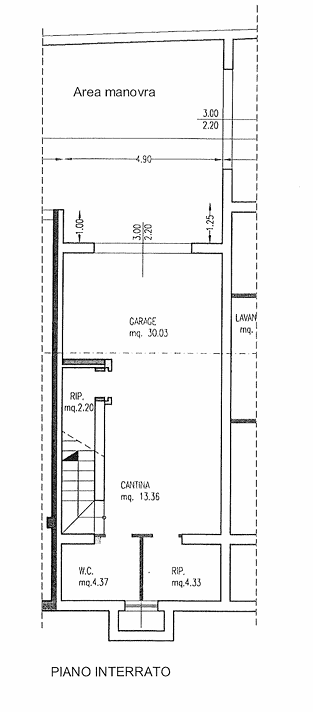
COSTERMANO SUL GARDA (VR) VIA ALCIDE DE GASPERI 2F - Quota per la 1/2 di proprietà di proprietà di casa a schiera con autorimessa di pertinenza, così composta: al piano terra zona giorno con corti esclusive sul fronte e retro; al primo piano due camere da letto, un bagno, due balconi; al piano seminterrato autorimessa, deposito, lavanderia, w.c. Immobile soggetto a L.G. n.ro 10/2024 - LOTTO UNICO - Tribunale di VERONA PREZZO BASE D'ASTA € 60.000,00 OFFERTA MINIMA DI PARTECIPAZIONE € 60.000,00 PROSSIMO ESPERIMENTO: 09/04/2026 PER VISITE ED INFORMAZIONI CHIAMARE IL 0458012557 o 3491676530 La nostra Agenzia presente da anni sul mercato, ricerca le procedure esecutive e concorsuali fornendo una consulenza tecnico legale, bancaria completa per la partecipazione all'asta per l'acquisto dell'immobile, che comprende: -Analisi della procedura esecutiva, valutazione del compendio immobiliare. -Assistenza e Partecipazione all'asta fino alla chiusura dell'operazione e all'assegnazione dell'immobile tramite, decreto di trasferimento o acquisto con rogito notarile. -Ricerca migliore tipologia di finanziamento con gli istituiti di credito convenzionati con il Tribunale di VERONA per l'acquisto dell'immobile in Asta. Da molti anni garantiamo un servizio sicuro e completo, volto al soddisfacimento della clientela più esigente che spazia dall'investitore al costruttore, dall'azienda multinazionale al privato. Ci occupiamo con successo di: -Vendita e Locazione di singole unità immobiliari residenziali e commerciali -Vendite in blocco e/o frazionate, di interi edifici, residenziali, commerciali e industriali. -Vendite in cantiere di Nuove Costruzioni, con lo sviluppo dei servizi connessi al cantiere -Consulenza finanziaria, con ricerca e valutazione di mutui bancari e/o leasing -Gestione delle locazioni di patrimoni immobiliari -Marketing e comunicazione immobiliare I nostri servizi: -Multi-pubblicazione dell'offerta immobiliare sui migliori canali online per la massima visibilità e tempi di conclusione più rapidi -Valutazio[…]



