Valutazione immobiliare indipendente, accurata e gratuita
Casa indipendente in vendita a Costermano sul Garda a 689.000 € (cod.64e1b502)
Caasa non ha sufficienti informazioni per commentare la casa indipendente a Costermano sul Garda - 64e1b502.
Analisi immobiliare
I dati in posseso di Caasa per quest'immobile sono insufficienti, inaffidabili o contraddittori per proporre un'analisi attendibile.
Mercato immobiliare a Costermano sul Garda
Per quanto riguarda più in generale il comune di Costermano sul Garda, sono presenti al momento più di 150 annunci per
case indipendenti in vendita (meno del 5% dell'intera provincia)
e il maggior numero di annunci per questa tipologia sono relativi alla zona di Marciaga.
Possiamo inoltre considerare che in tutto il comune negli ultimi 6 mesi, i prezzi per case indipendenti in vendita sono
in leggero aumento (+2,95%).
NOVITÀ Il risultato che vedi dipende dai dati che siamo riusciti ad estrarre dall'annuncio: ottieni una stima più accuranta di questo immobile, inserendo dati più precisi.
N.B. L'Opinione di Caasa® è un servizio sperimentale realizzato tramite tecniche di Intelligenza Artificiale, fornito senza alcuna garanzia di correttezza e completezza. Leggi il disclaimer o segnalaci un problema.
IMMAGINI
IN SINTESI
PROPOSTO DA:
GARDARENT SNC
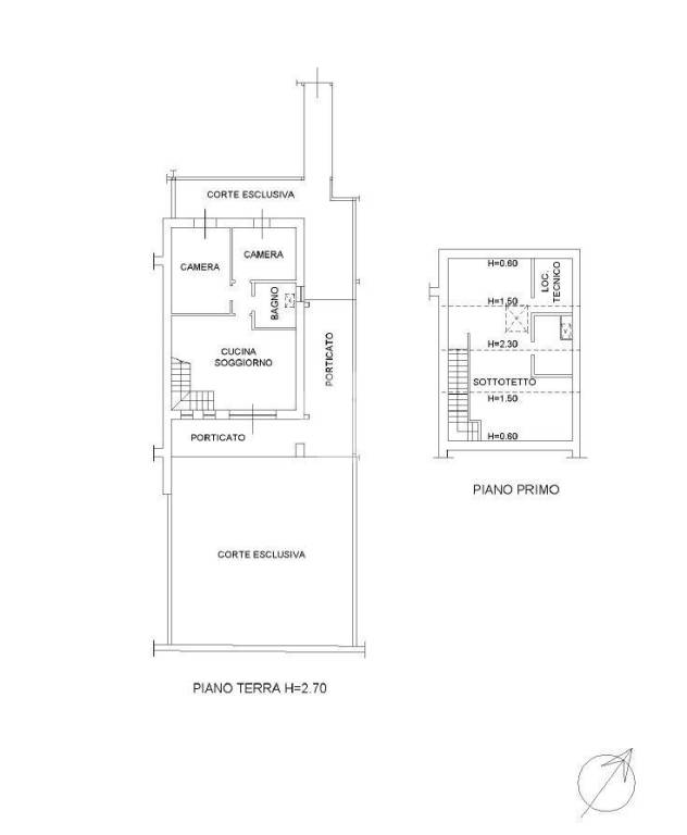
DESCRIZIONE
di nuova costruzione con posto auto con garage con giardino con terrazza di nuova costruzione
Costermano sul Garda Fraz. Castion: Elegante Villa d'Angolo con Ampio Giardino in recentissimo Residence con Piscina. In uno dei contesti più riservati e curati di Castion Veronese, affacciata sul suggestivo Parco della Salute, proponiamo in vendita prestigiosa villetta a schiera d'angolo con ampio giardino privato, situata all'interno di un elegante residence di sole otto unità con piscina. La proprietà, sviluppata su due livelli, si distingue per l'ottima esposizione, la totale indipendenza e le finiture di pregio. Il piano terra si apre con una luminosa zona giorno caratterizzata da una grande vetrata con accesso diretto al giardino esclusivo, perfetto per vivere al meglio ogni stagione. Sempre al piano troviamo una camera matrimoniale, una cameretta e un luminoso bagno con doccia. Il primo piano ospita una spaziosa camera matrimoniale, un bagno finestrato e un locale tecnico. Dotata di impianti di ultima generazione e in la villetta garantisce il massimo comfort abitativo e un eccellente risparmio energetico. A completare l'immobile due posti auto coperti di proprietà. Una soluzione ideale per chi cerca tranquillità, eleganza e qualità in un contesto esclusivo, a pochi minuti dal lago di Garda

