Valutazione immobiliare indipendente, accurata e gratuita
L'Opinione di Caasa® per l'appartamento in vendita a Cavaion Veronese in zona Sega a 305.000 € (cod.6526877c)
Secondo Caasa, per l'appartamento a Cavaion Veronese in zona Sega, la richiesta di 305.000 € è significativamente vantaggiosa rispetto agli annunci simili.
Analisi immobiliare
L'appartamento, situato nella zona OMI E1, è proposto in vendita a
305.000 € per una
superficie commerciale di
124 m² e quindi ad un prezzo per metro quadrato pari a
2459 €/m²
.
Questo valore
è significativamente più basso di quello stimato da Caasa per immobili in vendita simili per tipologia, caratteristiche, classe energetica e localizzati nella stessa zona OMI, che è compreso tra
3.187 €/m² e
3.452 €/m².
La conoscenza con buona approssimazione della localizzazione dell'immobile ha consentito di utilizzare come raffronto i dati medi elaborati esattamente nella zona OMI di appertenenza (FRAZIONE DI SEGA) per appartamenti (da 2.260 €/m² a 2.930 €/m²) e per trivani (da 2.250 €/m² a 3.010 €/m²). Inoltre, Caasa ha potuto affinare la stima anche con la conoscenza della classe energetica (A+) oltre che dello stato dell'immobile (di nuova costruzione) e di alcune caratteristiche significative come il garage. Per i motivi esposti è possibile considerare un intervallo di valori accettabili per l'offerta abbastanza limitato.
Mercato immobiliare a Cavaion Veronese
Per quanto riguarda più in generale il comune di Cavaion Veronese, sono presenti al momento più di cento annunci per
appartamenti in vendita (meno del 5% dell'intera provincia)
e il maggior numero di annunci per questa tipologia sono relativi proprio alla zona di Sega.
Per quanto riguarda la richiesta media in zona Sega, dove sorge l'appartamento, essa è pari a circa
2.600 €/m² per appartamenti in vendita.
Per quanto riguarda la dinamica dei prezzi, negli ultimi 6 mesi i prezzi medi in tutto il comune per appartamenti in vendita sono
sostanzialmente stabili (-0,89%).
NOVITÀ Il risultato che vedi dipende dai dati che siamo riusciti ad estrarre dall'annuncio: ottieni una stima più accuranta di questo immobile, inserendo dati più precisi.
N.B. L'Opinione di Caasa® è un servizio sperimentale realizzato tramite tecniche di Intelligenza Artificiale, fornito senza alcuna garanzia di correttezza e completezza. Leggi il disclaimer o segnalaci un problema.
IMMAGINI
IN SINTESI
DESCRIZIONE
di nuova costruzione con posto auto con garage con giardino di nuova costruzione con termocondizionamento
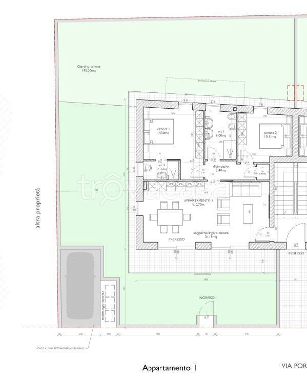
Prossimo inizio cantiere, proponiamo un elegante appartamento al piano terra, inserito in un contesto residenziale esclusivo composto da sole quattro unità abitative, situato nella tranquilla e ben servita località di Sega di Cavaion. L’immobile si sviluppa interamente su un unico livello, con una moderna e luminosa zona giorno open space che unisce cucina e soggiorno in un ambiente ampio e accogliente. Le grandi vetrate conferiscono luminosità naturale e si affacciano su un meraviglioso giardino angolare privato di 185 mq, perfetto per momenti di relax, pranzi all’aperto e per godere della bellezza del verde in totale privacy. La zona notte comprende una spaziosa camera matrimoniale, una seconda camera doppia e doppi servizi, un bagno finestrato con box doccia e uno di servizio, pensati per garantire il massimo comfort e funzionalità. Al piano interrato è presente un comodo garage privato. L’appartamento sarà realizzato con finiture di alto livello e tecnologie all’avanguardia: infissi in triplo vetro per un eccellente isolamento termoacustico, riscaldamento a pavimento alimentato da pompa di calore, impianto fotovoltaico e predisposizione per impianto di aria condizionata, in un’ottica di efficienza energetica e sostenibilità. La consegna è prevista per l'inizio del 2027, con la possibilità di personalizzare gli spazi interni e le finiture in fase di costruzione. Un’occasione imperdibile per chi desidera vivere in un ambiente moderno, efficiente e riservato, a pochi minuti dal Lago di Garda. Contattaci per ulteriori informazioni o per fissare un appuntamento. Prezzo richiesto: € 305.000.00 Riferimento: 012/1

