Valutazione immobiliare indipendente, accurata e gratuita
L'Opinione di Caasa® per l'appartamento in vendita a Castelnuovo del Garda a 300.000 € (cod.64dc345e)
Secondo Caasa, per l'appartamento in vendita a Castelnuovo del Garda, la richiesta di 300.000 € è significativamente vantaggiosa rispetto agli annunci simili.
Analisi immobiliare
L'appartamento è proposto in vendita a
300.000 € per una
superficie commerciale di
121 m² e quindi ad un prezzo per metro quadrato pari a
2479 €/m²
.
Questo prezzo
è più vantaggioso di quello stimato da Caasa per immobili in vendita simili per tipologia e caratteristiche, che è compreso tra
2.879 €/m² e
3.117 €/m².
E' stato possibile utilizzare nel raffronto i soli valori medi cittadini per appartamenti (da 2.170 €/m² a 3.125 €/m²) e per trivani (da 2.190 €/m² a 3.450 €/m²). Caasa non è stata infatti in grado di determinare in modo affidabile la posizione né la classe energetica dell'immobile. Ad affinare la stima hanno contribuito però anche lo stato dell'immobile (di nuova costruzione) e la presenza di alcune caratteristiche significative come il garage o la disponibilità di una cantina. Per questi motivi l'intervallo dei valori considerati accettabili per l'offerta economica è necessariamente adeguatamente ampio.
Mercato immobiliare a Castelnuovo del Garda
Per quanto riguarda più in generale il comune di Castelnuovo del Garda, sono presenti al momento più di 200 annunci per
appartamenti in vendita (meno del 5% dell'intera provincia)
e il maggior numero di annunci per questa tipologia sono relativi alla zona di Sandrà.
Possiamo inoltre considerare che in tutto il comune negli ultimi 6 mesi, i prezzi per appartamenti in vendita sono
in sostanziale aumento (+7,27%).
NOVITÀ Il risultato che vedi dipende dai dati che siamo riusciti ad estrarre dall'annuncio: ottieni una stima più accuranta di questo immobile, inserendo dati più precisi.
N.B. L'Opinione di Caasa® è un servizio sperimentale realizzato tramite tecniche di Intelligenza Artificiale, fornito senza alcuna garanzia di correttezza e completezza. Leggi il disclaimer o segnalaci un problema.
IMMAGINI
IN SINTESI
PROPOSTO DA:
ERA IMMOBILIARE
DESCRIZIONE
di nuova costruzione con posto auto con garage di nuova costruzione con terrazza con cantina con angolo cottura
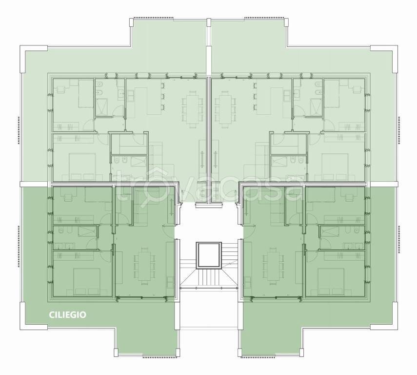
Il residence "La Quercia" è una prestigiosa combinazione di design e sostenibilità, realizzato secondo i protocolli di certificazione CasaClima®, un criterio di costruzione in bioedilizia attento ai dettagli, dove ogni processo viene seguito e testato al fine di rispettare gli alti standard qualitativi richiesti, pensato per chi ricerca qualità nella propria vita. La costruzione prevede un totale di 11 unità, di diverso taglio e sul seguente link si riuscirà a vedere l'intero cantiere con specifiche per ogni appartamento: https://www.immobiliare.it/annunci/120368950 L'appartamento denominato "CILIEGIO", posizionato al piano primo, è un trilocale di circa 85mq commerciali con esposizione nord-ovest, composto da una zona giorno con angolo cottura e un'ampia porta-finestra scorrevole che dà sull'ampia terrazza dotata di frangisole di legno, parapetto in vetro, spazio ideale ad essere sftruttato nelle belle stagioni. La zona notte è invece composta da una camera padronale, una seconda camera ampia, il servizio finestrato e un ripostiglio/lavanderia cieco. A conclusione dell'unità, compreso nel prezzo, c'è un garage doppio in lunghezza di circa 41mq commerciali. Superfici calpestabili: Zona living/cucina 31,87mq Ripostiglio/lavanderia 3,36mq Disimpegno 1,76mq Camera padronale 15,07mq Seconda camera 12,33mq Bagno 5,83mq Terrazzo 52,16mq (Per le specifiche verrà consegnato il capitolato in sede di appuntamento

