Valutazione immobiliare indipendente, accurata e gratuita

Appartamento in vendita a Castel d'Azzano in zona Beccacivetta a 180.000 € (cod.64eae570)

Caasa non ha sufficienti informazioni per commentare l'appartamento a Castel d'Azzano in zona Beccacivetta - 64eae570.

Analisi immobiliare
I dati in posseso di Caasa per quest'immobile sono insufficienti, inaffidabili o contraddittori per proporre un'analisi attendibile.
Mercato immobiliare a Castel d'Azzano
Per quanto riguarda più in generale il comune di Castel d'Azzano, sono presenti al momento circa cento annunci per appartamenti in vendita (meno dell'1% dell'intera provincia) e il maggior numero di annunci per questa tipologia sono relativi alla zona di Azzano, mentre nella zona di Beccacivetta è presente un numero significativamente inferiore di annunci.
Per quanto riguarda la richiesta media in zona Beccacivetta, dove sorge l'appartamento, essa è pari a circa 1.850 €/m² per appartamenti in vendita.
Per quanto riguarda la dinamica dei prezzi, negli ultimi 6 mesi i prezzi medi in tutto il comune per appartamenti in vendita sono in calo (-4,31%).

NOVITÀ Il risultato che vedi dipende dai dati che siamo riusciti ad estrarre dall'annuncio: ottieni una stima più accuranta di questo immobile, inserendo dati più precisi.

N.B. L'Opinione di Caasa® è un servizio sperimentale realizzato tramite tecniche di Intelligenza Artificiale, fornito senza alcuna garanzia di correttezza e completezza. Leggi il disclaimer o segnalaci un problema.

IMMAGINI

IN SINTESI

Prezzo:
180.000 €
Superficie:
95 m²
Prezzo al m²:
1894 €/m²
Piano:
terra (SENZA ascensore)
Bagni:
1
Classe energetica:
n.d.
Città:
Castel d'Azzano (VR)
Zona OMI:
B1 (INTERO TERRITORIO COMUNALE)
Indirizzo:
Pubblicato:
lun 6 ottobre 2025

PROPOSTO DA:

Zanetti Massimo

DESCRIZIONE

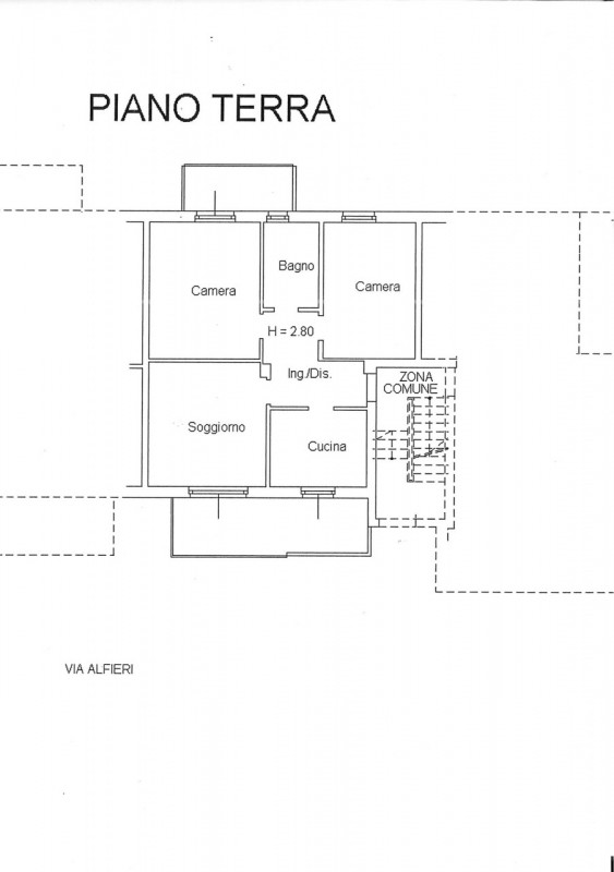
di recente costruzione con posto auto con garage con giardino con cantina con termocondizionamento con balcone con riscaldamento autonomo con cucina abitabile di recente ristrutturazione senza ascensore di recente costruzione

Beccacivetta: in tranquilla via chiusa, comoda a tutti i principali servizi come autobus. negozi, scuole, ecc, appartamento al piano rialzato all'interno di un contesto residenziale di sole sei unità abitative. La palazzina è stata di recente oggetto di totale ristrutturazione di tutte le parti comuni con il rifacimento del tetto ed installazione di pannelli fotovoltaici completi di batterie di accumulo, rivestimento a cappotto, serramenti a doppia camera in PVC con tapparelle nuove, sostituzione caldaia con sistema ibrido. Internamente l'abitazione si presenta originale degli anni 70 ma in buono stato di manutenzione generale, ed è composta da ingresso, cucina abitabile, soggiorno con ampio balcone, due spaziose camere, bagno ed altro balcone; completa il tutto la cantina e l'autorimessa a piano scantinato. Libero subito. Per maggiori informazioni o per concordare un appuntamento, potete contattarci ai numeri 331/1772277- 371/3512708 o all'indirizzo e-mail: info@delta-immobiliare.com . Presso la nostra agenzia il cliente può trovare operatori con esperienza pluriennale nel settore bancario/creditizio e assicurativo che permettono di soddisfare e trovare soluzioni di reperimento del finanziamento per l'acquisto della casa. Il colloquio è gratuito

  • immobiliare.it
  • bachecacase.com
  • bancadellecase.it
  • bilocale.it
  • cambiocasa.it
  • idealista.it
  • ioaffitto.it
  • trovacasa.net