Valutazione immobiliare indipendente, accurata e gratuita
Casa indipendente in vendita a Bussolengo a 485.000 € (cod.658d23e3)
Caasa non ha sufficienti informazioni per commentare la casa indipendente in vendita a Bussolengo - 658d23e3.
Analisi immobiliare
I dati in posseso di Caasa per quest'immobile sono insufficienti, inaffidabili o contraddittori per proporre un'analisi attendibile.
Mercato immobiliare a Bussolengo
Per quanto riguarda più in generale la città di Bussolengo, sono presenti al momento più di cento annunci per
case indipendenti in vendita (meno del 5% dell'intera provincia)
e il maggior numero di annunci per questa tipologia sono relativi alla zona di San Vito.
La dinamica dei prezzi in tutta la città mostra che negli ultimi 6 mesi, i prezzi per case indipendenti in vendita sono
in aumento (+4,72%).
NOVITÀ Il risultato che vedi dipende dai dati che siamo riusciti ad estrarre dall'annuncio: ottieni una stima più accuranta di questo immobile, inserendo dati più precisi.
N.B. L'Opinione di Caasa® è un servizio sperimentale realizzato tramite tecniche di Intelligenza Artificiale, fornito senza alcuna garanzia di correttezza e completezza. Leggi il disclaimer o segnalaci un problema.
IMMAGINI
IN SINTESI
PROPOSTO DA:
PUNTO OVEST SRL
DESCRIZIONE
di nuova costruzione con posto auto con garage con giardino con cantina con terrazza di nuova costruzione con termocondizionamento con riscaldamento autonomo senza ascensore con climatizzazione
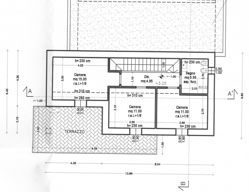
In una zona residenziale circondata dal verde, proponiamo ampia villa di nuova costruzione. Al piano terra, zona giorno open space di 42 mq con ampie vetrate servite da ampio porticato abitabile, comodo disimpegno/ripostiglio ed un bagno finestrato con doccia. La zona giorno affaccia sul giardino di proprietà di circa 230 mq. Da una comoda scala posta nella zona giorno, accediamo al reparto notte composto da un ampia camera matrimoniale servita da terrazzo, due camere da letto doppie ed un secondo servizio finestrato. Al piano terra completa la proprietà un posto auto coperto di circa 40 mq, adatto ad accogliere due vetture. L'abitazione verrà realizzata in , con particolare attenzione all'isolamento termico/acustico. Sarà inoltre dotato di un impianto di pannelli fotovoltaici per la produzione di energia elettrica per un totale di circa 6 kW. Le singole unità avranno riscaldamento a pavimento in pompa di calore e saranno dotate di predisposizione per gli split idronici, serramenti in PVC con doppio vetro e taglio termico (dotate di ante a ribalta e micro-ventilazione) e scuri in alluminio coibentato, porte interne con serratura magnetica. Possibilità di personalizzare le finiture. Consegna marzo 2027





