Valutazione immobiliare indipendente, accurata e gratuita
Terreno edificabile in vendita a Bussolengo a 200.000 € (cod.655beee9)
Caasa non ha sufficienti informazioni per commentare il terreno edificabile in vendita a Bussolengo - 655beee9.
Analisi immobiliare
I dati in posseso di Caasa per quest'immobile sono insufficienti, inaffidabili o contraddittori per proporre un'analisi attendibile.
Mercato immobiliare a Bussolengo
Per quanto riguarda più in generale la città di Bussolengo, sono presenti al momento più di trenta annunci per
terreni edificabili in vendita (meno del 5% dell'intera provincia)
e il maggior numero di annunci per questa tipologia sono relativi alla zona di San Vito.
Vedi altre informazioni direttamente su
Mercato-Immobiliare.info
NOVITÀ Il risultato che vedi dipende dai dati che siamo riusciti ad estrarre dall'annuncio: ottieni una stima più accuranta di questo immobile, inserendo dati più precisi.
N.B. L'Opinione di Caasa® è un servizio sperimentale realizzato tramite tecniche di Intelligenza Artificiale, fornito senza alcuna garanzia di correttezza e completezza. Leggi il disclaimer o segnalaci un problema.
IMMAGINI
IN SINTESI
DESCRIZIONE
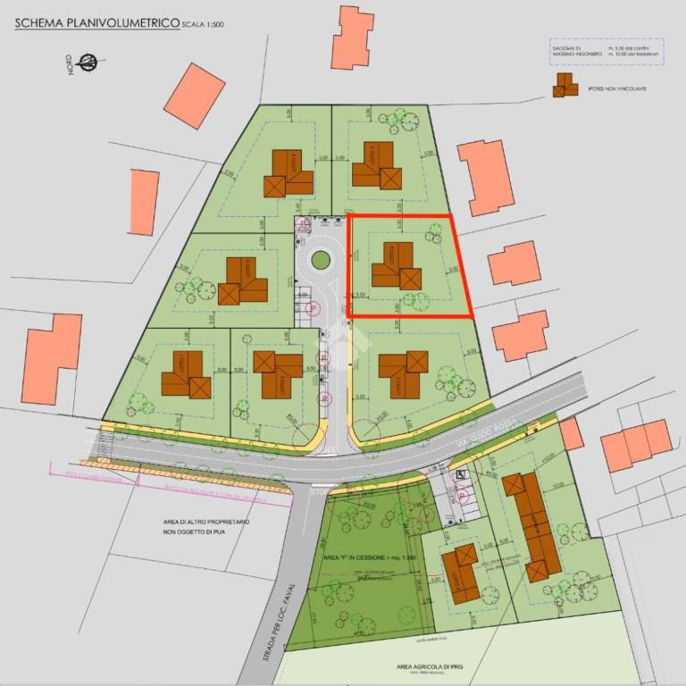
Nel comune di Bussolengo, proponiamo un terreno residenziale di 995 mq, ideale per chi desidera realizzare la propria abitazione su misura. Situato a pochi minuti dal centro, questo lotto offre la comodità di essere vicino ai principali servizi e alle vie di comunicazione, pur mantenendo la tranquillità di una zona residenziale. La posizione strategica consente di godere di un ambiente sereno, perfetto per chi cerca un equilibrio tra vita urbana e quiete. La generosa metratura del terreno permette di sviluppare un progetto di una villa singola, rispondendo alle esigenze specifiche di spazio e design. Un'opportunità unica per chi desidera costruire una casa che rifletta il proprio stile e le proprie necessità, in un contesto che garantisce privacy e comfort

