Valutazione immobiliare indipendente, accurata e gratuita
Appartamento in vendita a Belfiore a 295.000 € (cod.655bdb97)
Caasa non ha sufficienti informazioni per commentare l'appartamento in vendita a Belfiore - 655bdb97.
Analisi immobiliare
I dati in posseso di Caasa per quest'immobile sono insufficienti, inaffidabili o contraddittori per proporre un'analisi attendibile.
Mercato immobiliare a Belfiore
Per quanto riguarda più in generale il comune di Belfiore, sono presenti al momento circa cento annunci per
appartamenti in vendita (meno dell'1% dell'intera provincia) .
La dinamica dei prezzi in tutto il comune mostra che negli ultimi 6 mesi, i prezzi per appartamenti in vendita sono
in forte aumento (+15,37%).
NOVITÀ Il risultato che vedi dipende dai dati che siamo riusciti ad estrarre dall'annuncio: ottieni una stima più accuranta di questo immobile, inserendo dati più precisi.
N.B. L'Opinione di Caasa® è un servizio sperimentale realizzato tramite tecniche di Intelligenza Artificiale, fornito senza alcuna garanzia di correttezza e completezza. Leggi il disclaimer o segnalaci un problema.
IMMAGINI
IN SINTESI
PROPOSTO DA:
Apecasa di Gianluca Zanini
Via ponte 31/a, San Martino Buon Albergo (VR)
DESCRIZIONE
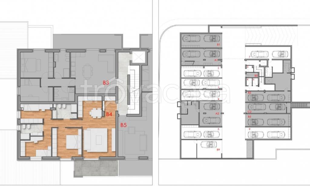
di nuova costruzione con posto auto con garage di nuova costruzione con terrazza con ascensore con balcone
Nel pieno centro di Belfiore, proponiamo in vendita un esclusivo appartamento quadrilocale di nuova costruzione situato al primo piano di una palazzina di nove unità, con ascensore. L’ appartamento si estende su una superficie di circa 102 mq e offre spazi perfettamente distribuiti per garantire comfort e funzionalità a tutta la famiglia. La zona giorno open space è particolarmente luminosa grazie alla vetrata che affaccia sul terrazzino. La zona notte comprende tre camere da letto: una spaziosa matrimoniale e due ulteriori stanze ideali come camerette o studio, oltre a due bagni moderni dotati di sanitari sospesi e finiture ricercate. Completano la proprietà un garage doppio al piano interrato. L’abitazione è progettata secondo i più elevati standard energetici: ogni unità dispone infatti di impianto fotovoltaico personale da 2,4 KWh e cappotto termico da 12 cm che assicurano efficienza energetica e risparmio sui consumi. Le pregiate finiture interne valorizzano ulteriormente l’eleganza degli ambienti. Situata in posizione strategica nel centro paese, la soluzione permette facile accesso ai servizi principali quali scuole, negozi ed aree verdi pubbliche; inoltre il contesto residenziale tranquillo rende questa proposta ideale sia per famiglie che desiderano vivere nella comodità del centro senza rinunciare alla privacy dello spazio esterno privato






