Valutazione immobiliare indipendente, accurata e gratuita
Appartamento in vendita ad Affi a 320.000 € (cod.64b4eeaf)
Caasa non ha sufficienti informazioni per commentare l'appartamento in vendita ad Affi - 64b4eeaf.
Analisi immobiliare
I dati in posseso di Caasa per quest'immobile sono insufficienti, inaffidabili o contraddittori per proporre un'analisi attendibile.
Mercato immobiliare ad Affi
Per quanto riguarda più in generale il comune di Affi, sono presenti al momento circa cento annunci per
appartamenti in vendita (meno dell'1% dell'intera provincia) .
La dinamica dei prezzi in tutto il comune mostra che negli ultimi 6 mesi, i prezzi per appartamenti in vendita sono
in forte aumento (+13,54%).
NOVITÀ Il risultato che vedi dipende dai dati che siamo riusciti ad estrarre dall'annuncio: ottieni una stima più accuranta di questo immobile, inserendo dati più precisi.
N.B. L'Opinione di Caasa® è un servizio sperimentale realizzato tramite tecniche di Intelligenza Artificiale, fornito senza alcuna garanzia di correttezza e completezza. Leggi il disclaimer o segnalaci un problema.
IMMAGINI
IN SINTESI
PROPOSTO DA:
GARDARENT SNC
DESCRIZIONE
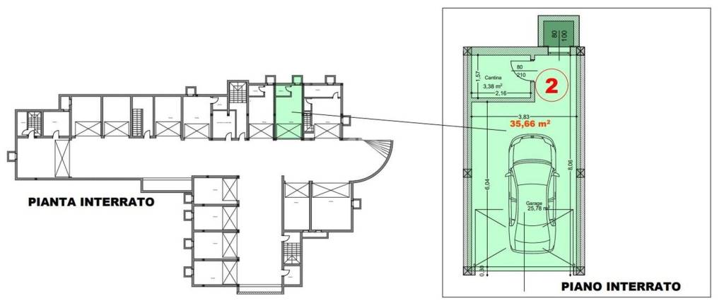
di nuova costruzione con posto auto con garage con giardino con terrazza di nuova costruzione con cantina per vacanza
UNICA OPPORTUNITA' DI ACQUISTO IN NUOVO RESIDENCE CON PISCINA IN AFFI. In elegante contesto di residence con piscina di sole 12 unità abitative realizzato con cura, attenzione e rispetto per l'ambiente, con soluzioni volte al risparmio energetico e all'ecosostenibilità. Proponiamo varie soluzioni abitative per ogni esigenza. Splendido appartamento al piano terra con giardino privato, composto da una luminosa zona living con affaccio diretto sul porticato e sul giardino frontale, due camere da letto con bagno finestrato. Al piano interrato completa la soluzione un garage singolo con cantina e un ulteriore posto esterno di proprietà dell'immobile. L'area piscina sarà circondata dal giardino condominiale delimitata da una siepe perimetrale, così da garantire a tutti i suoi ospiti un'accurata zona relax con la giusta privacy. Le soluzioni sono ideali come prima casa o casa vacanze, grazie alla posizione privilegiata, comoda al lago, alla città e alla montagna; alle comode dimensioni degli immobili costruiti con cura nei dettagli e nella scelta delle finiture, donando prestigio all'interno contesto. Il progetto è stato approvato e ci sarà la possibilità di scegliere diverse tipologie di immobili, sia al piano terra con giardino privato e comodi porticati che al primo piano con grandi terrazzi, inoltre tutti gli immobili saranno dotati di uno spazioso garage nella zona interrata con cantina. La consegna è prevista per l'estate 2026. 'Si prega di notare che, nonostante l'impegno profuso per garantire l'accuratezza e la correttezza delle informazioni presentate, il contenuto non ha valore contrattuale


