Valutazione immobiliare indipendente, accurata e gratuita
Negozio in vendita a Venezia in zona Mestre a 54.000 € (cod.656bd814)
Caasa non ha sufficienti informazioni per commentare il negozio in vendita a Venezia in zona Mestre - 656bd814.
Analisi immobiliare
I dati in posseso di Caasa per quest'immobile sono insufficienti, inaffidabili o contraddittori per proporre un'analisi attendibile.
Mercato immobiliare a Venezia
Per quanto riguarda più in generale la città di Venezia, sono presenti al momento ben oltre mille annunci per
negozi in vendita (quasi la metà dell'intera provincia)
e il maggior numero di annunci per questa tipologia sono relativi proprio alla zona di Mestre.
Vedi altre informazioni direttamente su
Mercato-Immobiliare.info
NOVITÀ Il risultato che vedi dipende dai dati che siamo riusciti ad estrarre dall'annuncio: ottieni una stima più accuranta di questo immobile, inserendo dati più precisi.
N.B. L'Opinione di Caasa® è un servizio sperimentale realizzato tramite tecniche di Intelligenza Artificiale, fornito senza alcuna garanzia di correttezza e completezza. Leggi il disclaimer o segnalaci un problema.
IMMAGINI
IN SINTESI
PROPOSTO DA:
Venice Immobiliare S.n.c. & C.
DESCRIZIONE
di recente ristrutturazione con posto auto con garage di recente ristrutturazione senza ascensore
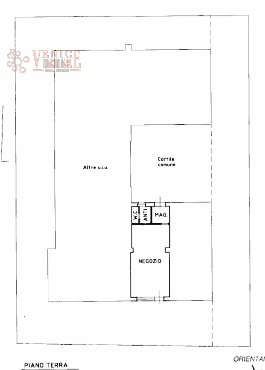
vendita un negozio di 40 mq perfettamente restaurato. Questo locale commerciale presenta una vetrina blindata fronte strada che garantisce sicurezza e visibilità, ideale per attrarre clienti. Il negozio è dotato di un magazzino con antibagno e bagno, rendendolo funzionale per diverse attività commerciali. Inoltre, c'è la possibilità di acquisire due garage/magazzini separati che sono stati precedentemente utilizzati come spazi aggiuntivi. L'immobile si presenta completamente ridipinto e pulito, conforme alle normative vigenti; non ci sono spese condominiali da sostenere. È predisposto per la climatizzazione, assicurando comfort sia ai proprietari che ai clienti durante tutto l'anno. La posizione strategica del negozio lo colloca vicino ad altre attività commerciali come bar, tabacchi e pescheria oltre alla vicinanza a scuole superiori ed una fermata dell'autobus proprio davanti al locale. Questa zona vivace offre un flusso costante di potenziali clienti. Non perdere questa opportunità unica! Contatta VENICE IMMOBILIARE esclusivamente MASSIMO al numero 351 200 1297 per ulteriori informazioni o per organizzare una visita. Certificazione APE G - Rif. FC170




