Valutazione immobiliare indipendente, accurata e gratuita
Appartamento in vendita a Venezia a 459.833 € (cod.6549badb)
Caasa non ha sufficienti informazioni per commentare l'appartamento in vendita a Venezia - 6549badb.
Analisi immobiliare
I dati in posseso di Caasa per quest'immobile sono insufficienti, inaffidabili o contraddittori per proporre un'analisi attendibile.
Mercato immobiliare a Venezia
Per quanto riguarda più in generale la città di Venezia, sono presenti al momento ben oltre 3.000 annunci per
appartamenti in vendita (meno di un terzo dell'intera provincia)
e il maggior numero di annunci per questa tipologia sono relativi alla zona di Mestre.
La dinamica dei prezzi in tutta la città mostra che negli ultimi 6 mesi, i prezzi per appartamenti in vendita sono
in debole aumento (+1,25%).
NOVITÀ Il risultato che vedi dipende dai dati che siamo riusciti ad estrarre dall'annuncio: ottieni una stima più accuranta di questo immobile, inserendo dati più precisi.
N.B. L'Opinione di Caasa® è un servizio sperimentale realizzato tramite tecniche di Intelligenza Artificiale, fornito senza alcuna garanzia di correttezza e completezza. Leggi il disclaimer o segnalaci un problema.
IMMAGINI
IN SINTESI
PROPOSTO DA:
asteaffari.com
DESCRIZIONE
di recente costruzione con posto auto con garage con termocondizionamento con cantina con giardino di recente costruzione con riscaldamento autonomo in asta giudiziaria senza ascensore
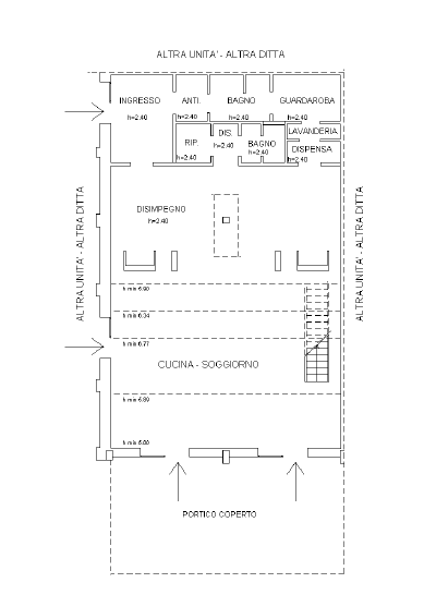
Rif. A.A.28-25 Vendita all'asta - loft con 2 posti auto in data 19 febbraio 2026 Descrizione: trattasi di un loft ammobiliato, facente parte del complesso "Residenze La Darsena", sito nel comune di Venezia. L'unità immobiliare è di 250 mq di superficie coperta e 40 mq scoperta. Vi è salone, sala da pranzo, cucina, lavanderia, bagno di cortesia, ripostiglio e camera, ballatoio, camera da letto con bagno con doccia e bagno turco, palestra, cabina armadio e altra camera con bagno. E' dotata degli impianti e di 2 posti auto. L'immobile viene venduto tramite asta giudiziaria, ed il prezzo indicato si riferisce al prezzo minimo accettato per la partecipazione all'asta. Aste-Affari fornisce un servizio di assistenza e consulenza tecnica, legale, fiscale e finanziaria su acquisti all'asta e affari immobiliari, al fine di rendere più facile e sicuro l'acquisto di un immobile proveniente dal mercato giudiziario oppure da occasioni presenti sul mercato immobiliare. Analisi di fattibilità, tecnica, burocratica, finanziaria, legale, esame problematiche e vincoli, conteggio costi accessori ed occulti, assistenza in tutte le fasi della procedura fino alla consegna delle chiavi dell'immobile. L'acquisto può essere finanziato tramite mutuo, e, ove possibile anche in pre-asta tramite procedura di saldo-stralcio. Prezzo minimo base asta : da euro 459.833,00 Per info aggiuntive, prenotazione visione, consulenza ed assistenza su asta : Studio di Consulenza : "aste-affari.com" Info: 042217801118 - 04221780185 www.aste-affari.com Sei un debitore ? Chiamaci ! Abbiamo soluzioni personalizzate anche per te

