Valutazione immobiliare indipendente, accurata e gratuita
L'Opinione di Caasa® per l'appartamento in vendita a Scorzè a 349.000 € (cod.64fb08f5)
Secondo Caasa, per l'appartamento in vendita a Scorzè, la richiesta di 349.000 € è leggermente svantaggiosa rispetto agli annunci simili.
Analisi immobiliare
L'appartamento, situato nella zona OMI E3, è proposto in vendita a
349.000 € per una
superficie commerciale di
115 m² e quindi ad un prezzo per metro quadrato pari a
3034 €/m²
.
Tale prezzo
è leggermente meno conveniente di quello stimato da Caasa per immobili in vendita simili per tipologia, caratteristiche, classe energetica e localizzati nella stessa zona OMI, che è compreso tra
2.695 €/m² e
2.937 €/m².
La conoscenza con buona approssimazione della localizzazione dell'immobile ha consentito di utilizzare come raffronto i dati medi elaborati esattamente nella zona OMI di appertenenza (PESEGGIA E GARDIGIANO). Inoltre, Caasa ha potuto affinare la stima anche con la conoscenza della classe energetica (A+) oltre che dello stato dell'immobile (di nuova costruzione) e di alcune caratteristiche significative come il garage. Per queste considerazioni i valori accettabili per l'offerta costituiscono un intervallo abbastanza limitato.
Mercato immobiliare a Scorzè
Per quanto riguarda più in generale la città di Scorzè, sono presenti al momento più di 150 annunci per
appartamenti in vendita (meno del 5% dell'intera provincia)
e il maggior numero di annunci per questa tipologia sono relativi alla zona di Peseggia.
Relativamente alla dinamica dei prezzi, possiamo dire che negli ultimi 6 mesi i prezzi medi in tutta la città per appartamenti in vendita sono
in forte aumento (+23,25%).
NOVITÀ Il risultato che vedi dipende dai dati che siamo riusciti ad estrarre dall'annuncio: ottieni una stima più accuranta di questo immobile, inserendo dati più precisi.
N.B. L'Opinione di Caasa® è un servizio sperimentale realizzato tramite tecniche di Intelligenza Artificiale, fornito senza alcuna garanzia di correttezza e completezza. Leggi il disclaimer o segnalaci un problema.
IMMAGINI
IN SINTESI
PROPOSTO DA:
PRIMACASA AFFILIATO SCORZÈ IMMOBILIARE S.N.C.
DESCRIZIONE
di nuova costruzione con posto auto con garage con giardino di nuova costruzione con termocondizionamento con angolo cottura
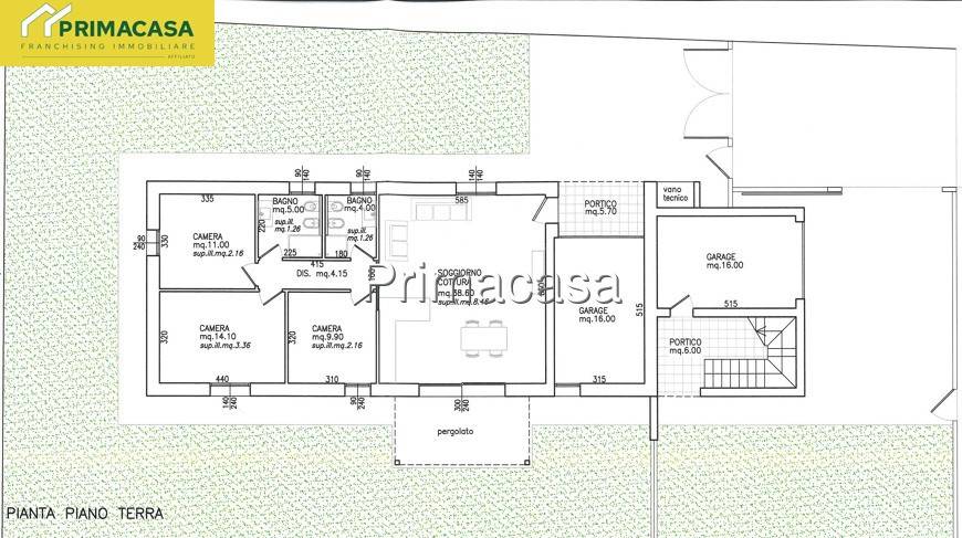
Proponiamo in vendita, in esclusivo contesto residenziale di nuova costruzione, un'introvabile appartamento al piano terra con 280mq di giardino privato, in consegna per Settembre 2026! L'unità è inserita in un edificio di sole 2 unità, con ingressi indipendente e senza alcun onere condominiale. Questo immobile offre un ampio soggiorno con angolo cottura, caratterizzato da un'ampia finestra che affaccia sul pergolato presente in giardino, mentre la zona notte è composta da 3 camere da letto e due bagni finestrati. Completa la soluzione il garage con angolo lavanderia ed il posto auto privato. L'appartamento è dotato di ottime finiture e rispetta gli standard di risparmio energetico più elevati, con impianto fotovoltaico da 4,5kwh, cappotto termico, riscaldamento a pavimento, ottimi per assicurare comfort sia in estate che in inverno. Non perdere l'opportunità di vivere a pochi passi dal centro in un ambiente moderno e sostenibile! Maggiori informazioni in ufficio. RIF 44


