Valutazione immobiliare indipendente, accurata e gratuita
Casa indipendente in vendita a Scorzè in zona Rio San Martino a 75.000 € (cod.64f6a2de)
Caasa non ha sufficienti informazioni per commentare la casa indipendente a Scorzè in zona Rio San Martino - 64f6a2de.
Analisi immobiliare
I dati in posseso di Caasa per quest'immobile sono insufficienti, inaffidabili o contraddittori per proporre un'analisi attendibile.
Mercato immobiliare a Scorzè
Per quanto riguarda più in generale la città di Scorzè, sono presenti al momento più di 200 annunci per
case indipendenti in vendita (meno del 5% dell'intera provincia)
e il maggior numero di annunci per questa tipologia sono relativi alla zona di Peseggia, mentre la zona di Rio San Martino risulta molto meno attiva considerando il numero di annunci presenti.
La richiesta media nella zona dove sorge la casa indipendente (Rio San Martino) è pari a
1.205 €/m² che la rende la più economica della città .
Possiamo inoltre considerare che in tutta la città negli ultimi 6 mesi, i prezzi per case indipendenti in vendita sono
in forte aumento (+23,90%).
NOVITÀ Il risultato che vedi dipende dai dati che siamo riusciti ad estrarre dall'annuncio: ottieni una stima più accuranta di questo immobile, inserendo dati più precisi.
N.B. L'Opinione di Caasa® è un servizio sperimentale realizzato tramite tecniche di Intelligenza Artificiale, fornito senza alcuna garanzia di correttezza e completezza. Leggi il disclaimer o segnalaci un problema.
IMMAGINI
IN SINTESI
PROPOSTO DA:
IMMOBILZERO - AGENZIA IMMOBILIARE NUOVE IDEE DI MARCHI ANNALY & C SNC
DESCRIZIONE
con posto auto con garage con giardino con cantina
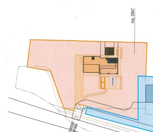
In vendita a Scorzè, nella tranquilla zona di Rio San Martino, Progetto approvato per una splendida casa singola. L'immobile si sviluppa su un unico piano terra di 135 mq e offre un'ottima distribuzione degli spazi. La casa dispone di un ampio soggiorno con cucina separata di circa 20 mq, tre camere da letto spaziose, due bagni moderni un ripostiglio e un garage con lavanderia. L'ingresso indipendente garantisce privacy e comodità, mentre il portico di 44 mq è perfetto per godere di piacevoli momenti all'aperto. La proprietà è circondata da un ampio giardino di circa 3000 mq, un vero angolo di paradiso per chi ama la natura e desidera uno spazio verde da personalizzare. Questa soluzione è ideale per famiglie che cercano un'abitazione spaziosa e moderna, immersa nel verde ma comunque comoda ai servizi. Il progetto può essere modificato in base alle singole esigenze. Non perdere l'opportunità di visitare questa splendida casa, contattaci per maggiori informazioni! Classe Energetica: Non soggetto


