Valutazione immobiliare indipendente, accurata e gratuita
Appartamento a San Michele al Tagliamento in zona Bibione a 116.220 € (cod.64cebfe9)
Caasa non ha sufficienti informazioni per commentare l'appartamento a San Michele al Tagliamento Bibione - 64cebfe9.
Analisi immobiliare
I dati in posseso di Caasa per quest'immobile sono insufficienti, inaffidabili o contraddittori per proporre un'analisi attendibile.
Mercato immobiliare a San Michele al Tagliamento
Per quanto riguarda più in generale il comune di San Michele al Tagliamento, sono presenti al momento oltre 500 annunci per
appartamenti in vendita (meno del 5% dell'intera provincia)
e il maggior numero di annunci per questa tipologia sono relativi proprio alla zona di Bibione.
Per quanto riguarda la richiesta media in zona Bibione, dove sorge l'appartamento, essa è pari a circa
3.365 €/m² per appartamenti in vendita.
Relativamente alla dinamica dei prezzi, possiamo dire che negli ultimi 6 mesi i prezzi medi in tutto il comune per appartamenti in vendita sono
sostanzialmente stabili (-0,70%).
NOVITÀ Il risultato che vedi dipende dai dati che siamo riusciti ad estrarre dall'annuncio: ottieni una stima più accuranta di questo immobile, inserendo dati più precisi.
N.B. L'Opinione di Caasa® è un servizio sperimentale realizzato tramite tecniche di Intelligenza Artificiale, fornito senza alcuna garanzia di correttezza e completezza. Leggi il disclaimer o segnalaci un problema.
IMMAGINI
IN SINTESI
PROPOSTO DA:
AGL BRESCIA
DESCRIZIONE
di recente costruzione con terrazza con posto auto con garage con giardino in asta giudiziaria di recente costruzione
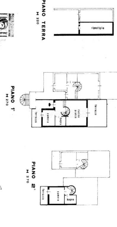
Nel condominio Villaggio Selene dotato di piscina, in zona semicentrale di Bibione - Appartamento su due piani, con zona giorno e pranzo, bagno e una camera al primo piano, seconda camera e bagno al secondo piano, doppio terrazzo; posto auto coperto […]
