Valutazione immobiliare indipendente, accurata e gratuita
L'Opinione di Caasa® per l'appartamento in vendita a San Donà di Piave a 285.000 € (cod.6590ff8e)
Secondo Caasa, per l'appartamento in vendita a San Donà di Piave, la richiesta di 285.000 € è equilibrata rispetto agli annunci simili.
Analisi immobiliare
L'appartamento, situato nei pressi di Via Sabbioni nella zona OMI B1, è proposto in vendita a
285.000 € per una
superficie commerciale di
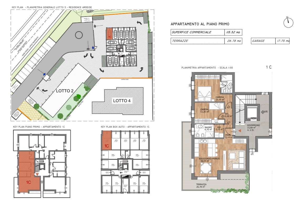
115 m² e quindi ad un prezzo per metro quadrato pari a
2478 €/m²
.
Questo prezzo
è in linea con quello stimato da Caasa per immobili in vendita simili per tipologia e caratteristiche e localizzati nella stessa zona OMI, che è compreso tra
2.269 €/m² e
2.452 €/m².
Grazie alla conoscenza con buona approssimazione della localizzazione dell'immobile, è stato possibile utilizzare come raffronto i dati medi elaborati esattamente nella zona OMI di appertenenza (CAPOLUOGO). Anche se Caasa non è riuscita a determinare la classe energetica, ad affinare la stima ha contribuito anche la presenza di alcune caratteristiche significative come il garage o la disponibilità di una cantina. Per queste ragioni l'intervallo dei valori accettabili per l'offerta è relativamente limitato.
Mercato immobiliare a San Donà di Piave
Per quanto riguarda più in generale la città di San Donà di Piave, sono presenti al momento quasi 500 annunci per
appartamenti in vendita (meno del 5% dell'intera provincia)
e il maggior numero di annunci per questa tipologia sono relativi alla zona di Passarella.
Possiamo inoltre considerare che in tutta la città negli ultimi 6 mesi, i prezzi per appartamenti in vendita sono
sostanzialmente stabili (+0,29%).
NOVITÀ Il risultato che vedi dipende dai dati che siamo riusciti ad estrarre dall'annuncio: ottieni una stima più accuranta di questo immobile, inserendo dati più precisi.
N.B. L'Opinione di Caasa® è un servizio sperimentale realizzato tramite tecniche di Intelligenza Artificiale, fornito senza alcuna garanzia di correttezza e completezza. Leggi il disclaimer o segnalaci un problema.
IMMAGINI
IN SINTESI
PROPOSTO DA:
AGENZIA IMMOBILIARE ARCOBALENO S.A.S. DI SANDRO TREVISAN E C.
DESCRIZIONE
con posto auto con garage con terrazza con cantina con termocondizionamento con angolo cottura con balcone con riscaldamento autonomo
A1122/1C - PROSSIMA REALIZZAZZIONE A San Donà di Piave, in una zona residenziale tranquilla e ben servita, a pochi passi dal centro, nasce una nuova palazzina di sole dodici unità, pensata per chi desidera vivere in un contesto moderno ed esclusivo. Al primo piano proponiamo un appartamento luminoso e funzionale, caratterizzato da un’ampia zona giorno con angolo cottura e accesso diretto a un terrazzo abitabile di oltre 25 mq, ideale per pranzi all’aperto e momenti di relax. La zona notte offre due camere da letto, di cui una con bagno privato, un pratico ripostiglio e un ulteriore bagno a servizio dell’abitazione. Completa la proprietà un comodo garage al piano terra. Costruito con le più moderne tecnologie, l’immobile garantisce massima efficienza energetica e comfort abitativo grazie alla classe A4, all’impianto fotovoltaico, alle tapparelle elettriche e alla predisposizione per aria condizionata e sistema d’allarme. Una soluzione ideale per chi cerca qualità, risparmio energetico e la comodità di vivere vicino al cuore della citt





