Valutazione immobiliare indipendente, accurata e gratuita
Appartamento in vendita a San Donà di Piave a 585.000 € (cod.652f2113)
Caasa non ha sufficienti informazioni per commentare l'appartamento in vendita a San Donà di Piave - 652f2113.
Analisi immobiliare
I dati in posseso di Caasa per quest'immobile sono insufficienti, inaffidabili o contraddittori per proporre un'analisi attendibile.
Mercato immobiliare a San Donà di Piave
Per quanto riguarda più in generale la città di San Donà di Piave, sono presenti al momento quasi 500 annunci per
appartamenti in vendita (meno del 5% dell'intera provincia)
e il maggior numero di annunci per questa tipologia sono relativi alla zona di Mussetta di Sopra.
La dinamica dei prezzi in tutta la città mostra che negli ultimi 6 mesi, i prezzi per appartamenti in vendita sono
in forte aumento (+11,01%).
NOVITÀ Il risultato che vedi dipende dai dati che siamo riusciti ad estrarre dall'annuncio: ottieni una stima più accuranta di questo immobile, inserendo dati più precisi.
N.B. L'Opinione di Caasa® è un servizio sperimentale realizzato tramite tecniche di Intelligenza Artificiale, fornito senza alcuna garanzia di correttezza e completezza. Leggi il disclaimer o segnalaci un problema.
IMMAGINI
IN SINTESI
PROPOSTO DA:
Europacasa Immobiliare
DESCRIZIONE
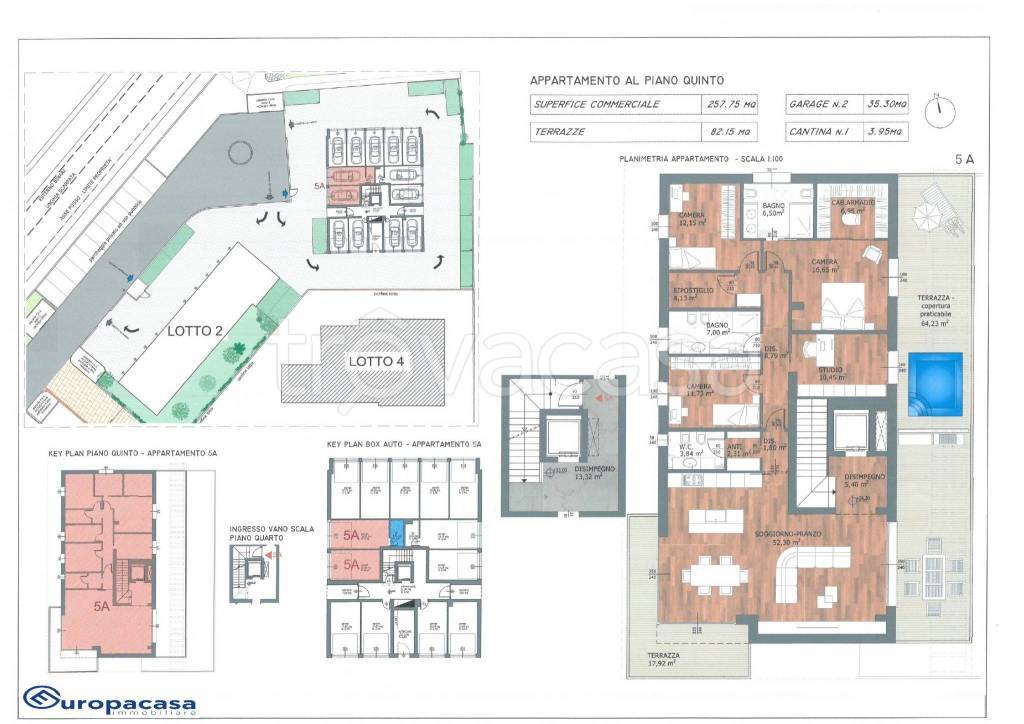
di nuova costruzione con posto auto con garage con terrazza di nuova costruzione con cantina con termocondizionamento
RESIDENCE “ARDEIDE” – San Donà di Piave SUPER ATTICO- Scopri un nuovo modo di vivere la casa. Il Residence Ardeide è il progetto pensato per chi desidera comfort, modernità e una qualità abitativa superiore. Situato in una delle zone più apprezzate e comode della città, il residence gode di una posizione strategica, a due passi dal centro e vicino a tutti i principali servizi. Appartamenti Due Camere e super attico In un edificio elegante e contemporaneo, composto da sole 12 unità distribuite su cinque piani, proponiamo un appartamento dal design funzionale e ricercato, ideale per chi cerca spazi intelligenti e ben organizzati. Composizione: Ingresso accogliente Ampia zona living Generosa con cucina a vista Camera matrimoniale di generose dimensioni Camera Doppia Camera Doppia Camera Piccola Bagno padronale Bagno Secondario generoso Disimpegno zona notte Ripostiglio Splendido terrazzo perimetrale di 50 mq, perfetto per godersi l’esterno in ogni stagione Efficienza energetica e comfort L’edificio è progettato secondo i più avanzati standard energetici: sistemi di riscaldamento e raffrescamento ad alta efficienza impianti fotovoltaici soluzioni costruttive orientate al risparmio energetico e al massimo benessere abitativo Garage al piano terra incluso nel prezzo. Disponibilità di posto auto. ???? Un’opportunità da non perdere! Contattaci per informazioni o per prenotare una visita: ???? Agenzia Europacasa Immobiliare Via Risorgimento, 30 – San Donà di Piave ?? 0421 631069 – 334 6961277


