Valutazione immobiliare indipendente, accurata e gratuita
Appartamento in vendita a Quarto d'Altino in zona Porte Grandi a 33.600 € (cod.64f930a0)
Caasa non ha sufficienti informazioni per commentare l'appartamento a Quarto d'Altino in zona Porte Grandi - 64f930a0.
	Analisi immobiliare
	
	I dati in posseso di Caasa per quest'immobile sono insufficienti, inaffidabili o contraddittori per proporre un'analisi attendibile.
	
	Mercato immobiliare a Quarto d'Altino
	
	Per quanto riguarda più in generale il comune di Quarto d'Altino, sono presenti al momento più di cinquanta annunci per 
		appartamenti in vendita (meno dell'1% dell'intera provincia) 
	
	 e il maggior numero di annunci per questa tipologia sono relativi alla zona di Altino, mentre la zona di Porte Grandi risulta molto meno attiva considerando il numero di annunci presenti.
	
	
	
	Per quanto riguarda la dinamica dei prezzi, negli ultimi 6 mesi i prezzi medi in tutto il comune per appartamenti in vendita sono 
		in calo (-4,77%).
	
	
	
NOVITÀ Il risultato che vedi dipende dai dati che siamo riusciti ad estrarre dall'annuncio: ottieni una stima più accuranta di questo immobile, inserendo dati più precisi.
N.B. L'Opinione di Caasa® è un servizio sperimentale realizzato tramite tecniche di Intelligenza Artificiale, fornito senza alcuna garanzia di correttezza e completezza. Leggi il disclaimer o segnalaci un problema.
IMMAGINI
IN SINTESI
PROPOSTO DA:
asteaffari.com
DESCRIZIONE
da ristrutturare con posto auto con garage con terrazza con giardino con angolo cottura con termocondizionamento in asta giudiziaria senza ascensore con riscaldamento autonomo
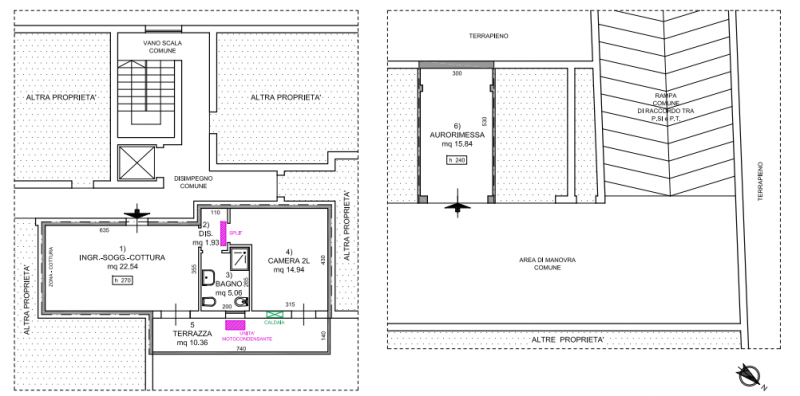
RIF. A.A.07-20 Vendita all'asta - appartamento al 2° piano in data 04 dicembre 2025 Descrizione immobili : trattasi di un appartamento ubicato al 2° piano secondo di un edificio condominiale denominato "Residence San Marco" sito nel comune di Quarto d'Altino (VE) località Portegrandi. L'unità immobiliare, della superficie commerciale complessiva di mq. 63, è composta da: ingresso - soggiorno - cottura, disimpegno, bagno, stanza matrimoniale e terrazzo; completa la proprietà un'autorimessa al piano seminterrato adatta al ricovero di un singolo automezzo, non finestrata. L'abitazione presenta finiture e rivestimenti di tipo civile, in buono stato generale di conservazione e manutenzione. Possibile prezzo di aggiudicazione : da euro 33.600,00 L'immobile viene venduto tramite asta giudiziaria, ed il prezzo indicato si riferisce al prezzo minimo accettato per la partecipazione all'asta. Aste-Affari fornisce un servizio di assistenza e consulenza tecnica, legale, fiscale e finanziaria su acquisti all'asta e affari immobiliari, al fine di rendere più facile e sicuro l'acquisto di un immobile proveniente dal mercato giudiziario oppure da occasioni presenti sul mercato immobiliare. Analisi di fattibilità, tecnica, burocratica, finanziaria, legale, esame problematiche e vincoli, conteggio costi accessori ed occulti, assistenza in tutte le fasi della procedura fino alla consegna delle chiavi dell'immobile. L'acquisto può essere finanziato tramite mutuo Per info aggiuntive, prenotazione visione , consulenza ed assistenza su asta : Studio di Consulenza : "aste-affari.com" info: 04221781118 / 04221780185 www.aste-affari.com Sei un debitore ? Chiamaci ! Abbiamo soluzioni personalizzate anche per te
                              
                              
                              
                              
                              
                              
                              
                              
                              
                              


