Valutazione immobiliare indipendente, accurata e gratuita
Appartamento in vendita a Portogruaro in zona Lugugnana a 51.230 € (cod.653e4f8b)
Caasa non ha sufficienti informazioni per commentare l'appartamento a Portogruaro in zona Lugugnana - 653e4f8b.
Analisi immobiliare
I dati in posseso di Caasa per quest'immobile sono insufficienti, inaffidabili o contraddittori per proporre un'analisi attendibile.
Mercato immobiliare a Portogruaro
Per quanto riguarda più in generale la città di Portogruaro, sono presenti al momento più di 200 annunci per
appartamenti in vendita (meno del 5% dell'intera provincia)
e il maggior numero di annunci per questa tipologia sono relativi alla zona di Summaga, mentre nella zona di Lugugnana è presente un numero significativamente inferiore di annunci.
La dinamica dei prezzi in tutta la città mostra che negli ultimi 6 mesi, i prezzi per appartamenti in vendita sono
in calo (-4,29%).
NOVITÀ Il risultato che vedi dipende dai dati che siamo riusciti ad estrarre dall'annuncio: ottieni una stima più accuranta di questo immobile, inserendo dati più precisi.
N.B. L'Opinione di Caasa® è un servizio sperimentale realizzato tramite tecniche di Intelligenza Artificiale, fornito senza alcuna garanzia di correttezza e completezza. Leggi il disclaimer o segnalaci un problema.
IMMAGINI
IN SINTESI
PROPOSTO DA:
asteaffari.com
DESCRIZIONE
da ristrutturare con posto auto con giardino con cantina con termocondizionamento da ristrutturare in asta giudiziaria con riscaldamento autonomo senza ascensore
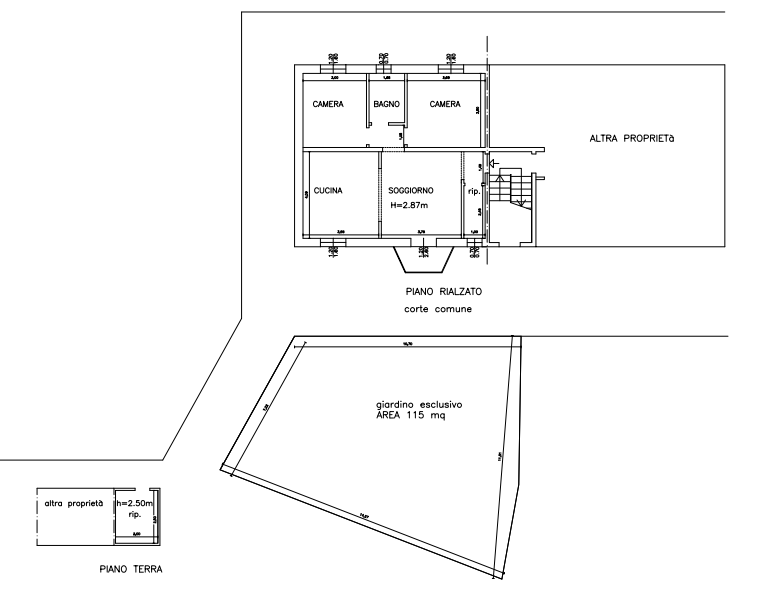
Rif. A.A.218-24 Vendita all'asta - appartamento al piano terra rialzato in data 20 febbraio 2026 Descrizione: trattasi di un appartamento ubicato al piano rialzato posto sul lato sinistro percorrendo la prima rampa di scala, di un edificio residenziale sito nel comune di Portogruaro (VE). L'unità immobiliare è costituita da ingresso, ripostiglio, soggiorno, cucina, 2 camere e un bagno. Al piano secondo con ingresso centrale vi è una soffitta che si sviluppa sulla metà a destra del fabbricato ad uso ripostiglio. All'unità imm.re è attribuita una porzione di giardino ad uso esclusivo e un ripostiglio esterno. Superficie commerciale complessiva mq.100. Prezzo minimo base asta : da euro 51.230,00 L'immobile viene venduto tramite asta giudiziaria, ed il prezzo indicato si riferisce al prezzo minimo accettato per la partecipazione all'asta. Aste-Affari fornisce un servizio di assistenza e consulenza tecnica, legale, fiscale e finanziaria su acquisti all'asta e affari immobiliari, al fine di rendere più facile e sicuro l'acquisto di un immobile proveniente dal mercato giudiziario oppure da occasioni presenti sul mercato immobiliare. Analisi di fattibilità, tecnica, burocratica, finanziaria, legale, esame problematiche e vincoli, conteggio costi accessori ed occulti, assistenza in tutte le fasi della procedura fino alla consegna delle chiavi dell'immobile. L'acquisto può essere finanziato tramite mutuo, e, ove possibile anche in pre-asta tramite procedura di saldo-stralcio. Per info aggiuntive, prenotazione visione, consulenza ed assistenza su asta : Studio di Consulenza : "aste-affari.com" info: 04221781118 04221780185 www.aste-affari.com Sei un debitore ? Chiamaci ! Abbiamo soluzioni personalizzate anche per te



