Valutazione immobiliare indipendente, accurata e gratuita
Casa semindipendente in vendita a Mira in zona Dogaletto a 62.928 € (cod.650694e6)
Caasa non ha sufficienti informazioni per commentare la casa semindipendente a Mira in zona Dogaletto - 650694e6.
Analisi immobiliare
I dati in posseso di Caasa per quest'immobile sono insufficienti, inaffidabili o contraddittori per proporre un'analisi attendibile.
Mercato immobiliare a Mira
Per quanto riguarda più in generale la città di Mira, sono presenti al momento più di 300 annunci per
case semindipendenti in vendita (meno del 5% dell'intera provincia)
e il maggior numero di annunci per questa tipologia sono relativi alla zona di Giovanni XXIII, ma anche la zona di Dogaletto è molto attiva dal punto di vista immobiliare.
La richiesta media nella zona dove sorge la casa semindipendente (Dogaletto) è pari a
1.485 €/m² che la rende la più economica della città .
Possiamo inoltre considerare che in tutta la città negli ultimi 6 mesi, i prezzi per case semindipendenti in vendita sono
in forte aumento (+11,10%).
NOVITÀ Il risultato che vedi dipende dai dati che siamo riusciti ad estrarre dall'annuncio: ottieni una stima più accuranta di questo immobile, inserendo dati più precisi.
N.B. L'Opinione di Caasa® è un servizio sperimentale realizzato tramite tecniche di Intelligenza Artificiale, fornito senza alcuna garanzia di correttezza e completezza. Leggi il disclaimer o segnalaci un problema.
IMMAGINI
IN SINTESI
PROPOSTO DA:
asteaffari.com
DESCRIZIONE
da ristrutturare con posto auto con garage con giardino con terrazza con termocondizionamento da ristrutturare con riscaldamento autonomo in asta giudiziaria senza ascensore
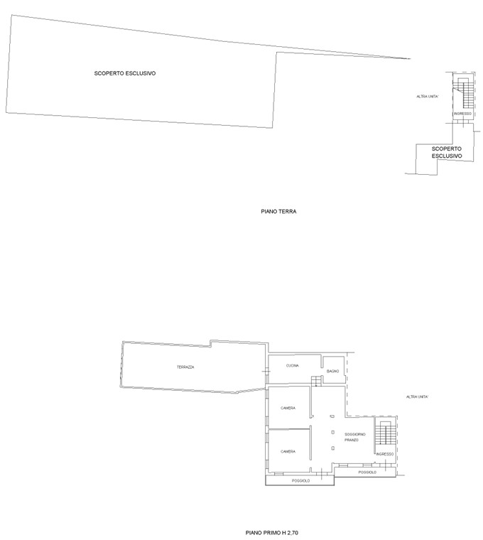
Rif. A.A.348-241 Vendita all'asta - appartamento con garage in data 20 gennaio 2026 Descrizione: trattasi di un appartamento posto al piano terra (ingresso con vano scale indipendente) e primo, di un immobile sito nel comune di Mira (VE). L'unità immobiliare, della superficie complessiva di mq.146, è composta da ingresso con vano scala al piano terra, pranzo - soggiorno, due camere, disimpegno, cucina, bagno, due terrazzi a est, un grande terrazzo a sud sopra i locali garage. Garage. Quota per 1/2 area scoperta urbana. L'immobile viene venduto tramite asta giudiziaria, ed il prezzo indicato si riferisce al prezzo minimo accettato per la partecipazione all'asta . Aste-Affari fornisce un servizio di assistenza e consulenza tecnica , legale, fiscale e finanziaria su acquisti all'asta e affari immobiliari , al fine di rendere più facile e sicuro l'acquisto di un immobile proveniente dal mercato giudiziario oppure da occasioni presenti sul mercato immobiliare . Analisi di fattibilità , tecnica, burocratica, finanziaria , legale , esame problematiche e vincoli , conteggio costi accessori ed occulti, assistenza in tutte le fasi della procedura fino alla consegna delle chiavi dell'immobile . L'acquisto può essere finanziato tramite mutuo , e , ove possibile , anche in pre-asta tramite procedura di saldo-stralcio . Soluzioni personalizzate per i debitori . Prezzo minimo base asta : euro 62.928,00 Per info aggiuntive , prenotazione visione, consulenza ed assistenza Studio di Consulenza : 'aste-affari.com' Info : 042217801118 - 04221780185 www.aste-affari.com




