Valutazione immobiliare indipendente, accurata e gratuita

Appartamento in vendita a Mira in zona Dogaletto a 103.560 € (cod.64eb27f9)

Caasa non ha sufficienti informazioni per commentare l'appartamento in vendita a Mira in zona Dogaletto - 64eb27f9.

Analisi immobiliare
I dati in posseso di Caasa per quest'immobile sono insufficienti, inaffidabili o contraddittori per proporre un'analisi attendibile.
Mercato immobiliare a Mira
Per quanto riguarda più in generale la città di Mira, sono presenti al momento quasi 500 annunci per appartamenti in vendita (meno del 5% dell'intera provincia) e il maggior numero di annunci per questa tipologia sono relativi alla zona di Giovanni XXIII, mentre nella zona di Dogaletto è presente un numero significativamente inferiore di annunci.
La richiesta media nella zona dove sorge l'appartamento (Dogaletto) è pari a 1.000 €/m² che la rende la più economica della città .
Relativamente alla dinamica dei prezzi, possiamo dire che negli ultimi 6 mesi i prezzi medi in tutta la città per appartamenti in vendita sono in deciso aumento (+9,33%).

NOVITÀ Il risultato che vedi dipende dai dati che siamo riusciti ad estrarre dall'annuncio: ottieni una stima più accuranta di questo immobile, inserendo dati più precisi.

N.B. L'Opinione di Caasa® è un servizio sperimentale realizzato tramite tecniche di Intelligenza Artificiale, fornito senza alcuna garanzia di correttezza e completezza. Leggi il disclaimer o segnalaci un problema.

IMMAGINI

IN SINTESI

Prezzo:
103.560 €
Superficie:
146 m²
Prezzo al m²:
709 €/m²
Piano:
n.d.
Bagni:
1
Classe energetica:
n.d.
Città:
Mira (VE)
Zona OMI:
R1 (ZONA RURALE)
Indirizzo:
Pubblicato:
dom 27 luglio 2025

PROPOSTO DA:

Progetta Immobiliare

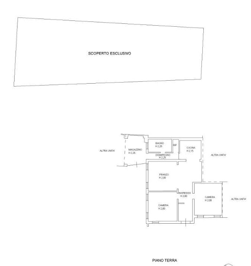
DESCRIZIONE

con posto auto con garage con cantina in asta giudiziaria

Abitazione composta da ingresso, con due camere ai lati, pranzo e soggiorno, cucina aperta sul soggiorno, disimpegno che conduce al ripostiglio e bagno e infine al magazzino, collegato e aperto sul garage, nella cucina è stato realizzato un controsof […]

  • yescasa.it