Valutazione immobiliare indipendente, accurata e gratuita
Capannone in affitto a Mira a 9.000 € mese (cod.63babf08)
Caasa non ha sufficienti informazioni per commentare il capannone in affitto a Mira - 63babf08.
	Analisi immobiliare
	
	I dati in posseso di Caasa per quest'immobile sono insufficienti, inaffidabili o contraddittori per proporre un'analisi attendibile.
	
	Mercato immobiliare a Mira
	
	Per quanto riguarda più in generale la città di Mira, sono presenti al momento meno di dieci annunci per 
		capannoni in affitto (meno del 5% dell'intera provincia) 
	
	 e il maggior numero di annunci per questa tipologia sono relativi alla zona di Giovanni XXIII.
	
	
	
	Vedi altre informazioni direttamente su 
		Mercato-Immobiliare.info
		
	
NOVITÀ Il risultato che vedi dipende dai dati che siamo riusciti ad estrarre dall'annuncio: ottieni una stima più accuranta di questo immobile, inserendo dati più precisi.
N.B. L'Opinione di Caasa® è un servizio sperimentale realizzato tramite tecniche di Intelligenza Artificiale, fornito senza alcuna garanzia di correttezza e completezza. Leggi il disclaimer o segnalaci un problema.
IMMAGINI
IN SINTESI
DESCRIZIONE
con ascensore
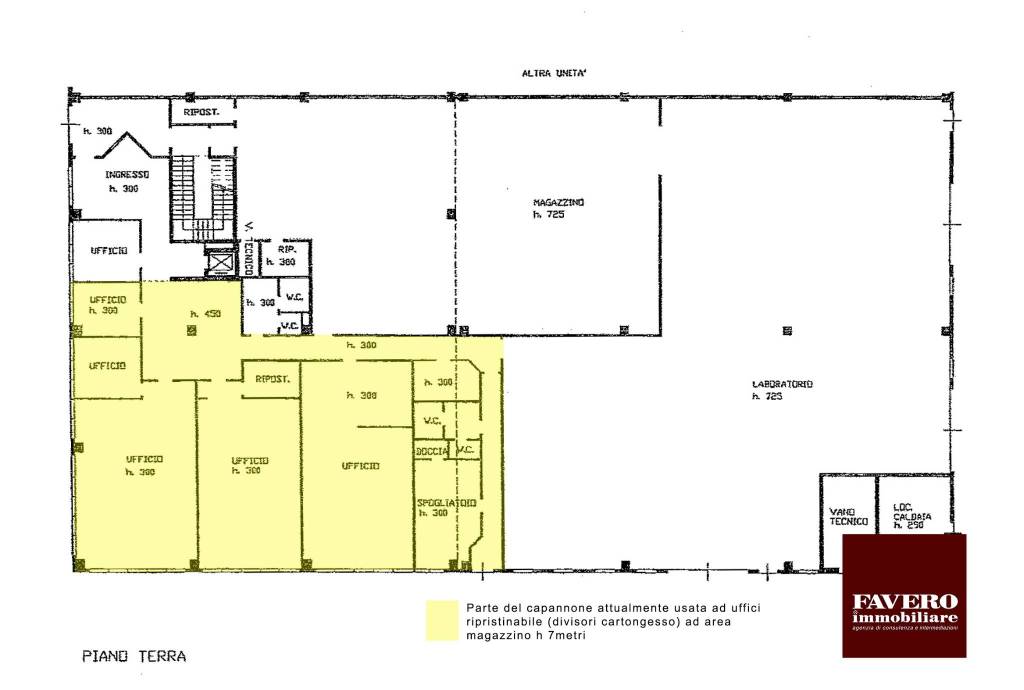
MIRA - vendesi o affittasi - Porzione di Capannone con scoperto su 3 lati L'immobile sorge su un lotto di circa 3600mq e ha una pianta al piano terra di 1530mq a cui si aggiungono altri 450mq al piano superiore. Il piano terra è suddiviso tra l'area laboratorio-magazzino con altezza 7,25 metri (superfice 1000mq) e l'area ad uso uffici con altezza 3 metri (530mq); in caso di necessità l'area uffici del piano terra può essere eliminata per allargare la zona produttiva fino a 1500mq circa (le divisioni sono semplici cartongessi). L'area produttiva è dotata di 3 portoni per l'accesso messi ed il carico-scarico. Il piano primo (con ascensore) è interamente ad uso uffici (superfice 450mq) e dispone di una terrazza. Il capannone è dotato di impianto anti-incendio; gli uffici sono già pronti all'uso. Il prezzo di vendita è di Euro 1.600. 000 +iva Il canone di locazione è pari ad Euro 9.000 + iva Agenzia FAVERO immobiliare via G. Mazzini n. 60, Dolo (VE) Tel. 041.413140 email: info@faveroimmobiliare.com web: www.faveroimmobiliare.com N. B. : Le indicazioni riportate nella mappa in relazione alla posizione del fabbricato sono puramente indicative. Le persone interessate verranno accompagnate in visita sull'immobile direttamente da un nostro Agente immobiliare
                        
                              
                              
                              
                              
                              
                              
                              
                              
                              
                              
                              
                              
                        
