Valutazione immobiliare indipendente, accurata e gratuita

Ufficio in affitto a Meolo a 4.000 € mese (cod.64e39594)

Caasa non ha sufficienti informazioni per commentare l'ufficio in affitto a Meolo - 64e39594.

Analisi immobiliare
I dati in posseso di Caasa per quest'immobile sono insufficienti, inaffidabili o contraddittori per proporre un'analisi attendibile.
Mercato immobiliare a Meolo
Per quanto riguarda più in generale il comune di Meolo, sono presenti al momento meno di dieci annunci per uffici in affitto (meno del 5% dell'intera provincia) .

Vedi altre informazioni direttamente su Mercato-Immobiliare.info

NOVITÀ Il risultato che vedi dipende dai dati che siamo riusciti ad estrarre dall'annuncio: ottieni una stima più accuranta di questo immobile, inserendo dati più precisi.

N.B. L'Opinione di Caasa® è un servizio sperimentale realizzato tramite tecniche di Intelligenza Artificiale, fornito senza alcuna garanzia di correttezza e completezza. Leggi il disclaimer o segnalaci un problema.

IMMAGINI

IN SINTESI

Prezzo:
4.000 € mese
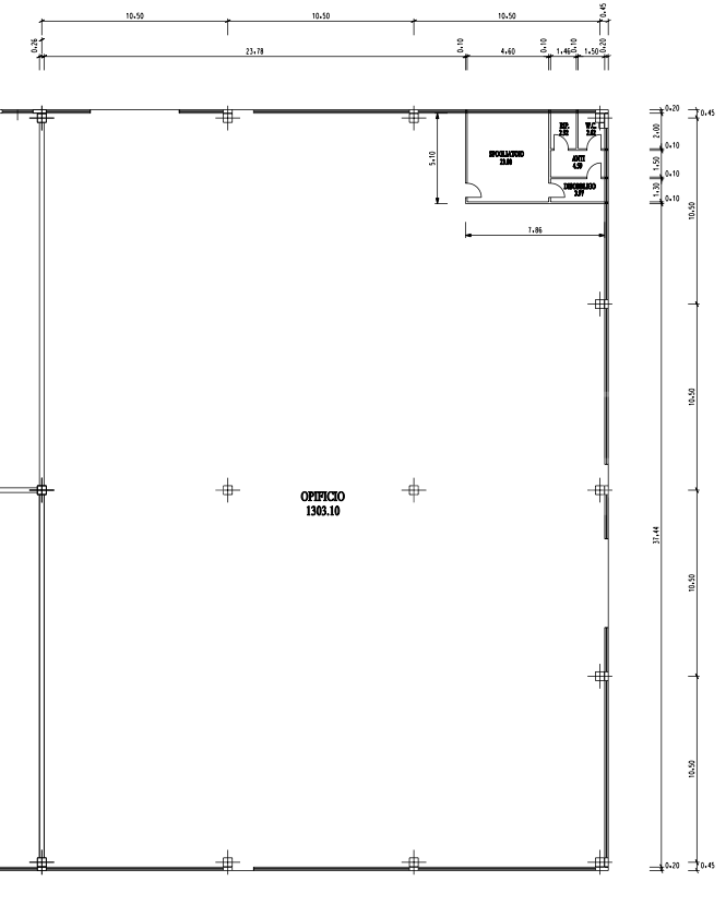
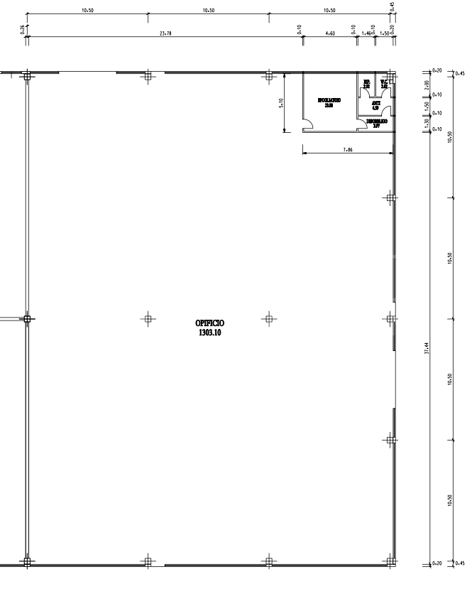
Superficie:
1300 m²
Prezzo al m²:
3,1/mese €/m²
Piano:
n.d.
Bagni:
2
Classe energetica:
n.d.
Città:
Meolo (VE)
Zona OMI:
E2 (ZONA INDUSTRIALE)
Indirizzo:
Pubblicato:
lun 29 settembre 2025

PROPOSTO DA:

GABETTI GROUP

DESCRIZIONE

con posto auto

1300 mq di capannone alto 6 metri con 1 ufficio, 2 servizi, altezza sotto trave 6 metri, ampio scoperto, 2 portoni carico scarico. Per info CARLO GUERRA 347 035 97 45. - SC9467629

  • immobiliare.it
  • pcase.it
  • bancadellecase.it
  • cambiocasa.it
  • risorseimmobiliari.it
  • trovacasa.net