Valutazione immobiliare indipendente, accurata e gratuita
Casale in vendita a Marcon in zona Gaggio a 116.437 € (cod.64f91eaa)
Caasa non ha sufficienti informazioni per commentare il casale in vendita a Marcon in zona Gaggio - 64f91eaa.
Analisi immobiliare
I dati in posseso di Caasa per quest'immobile sono insufficienti, inaffidabili o contraddittori per proporre un'analisi attendibile.
Mercato immobiliare a Marcon
Per quanto riguarda più in generale la città di Marcon, sono presenti al momento più di venti annunci per
casali in vendita (meno del 5% dell'intera provincia)
e il maggior numero di annunci per questa tipologia sono relativi proprio alla zona di Gaggio.
NOVITÀ Il risultato che vedi dipende dai dati che siamo riusciti ad estrarre dall'annuncio: ottieni una stima più accuranta di questo immobile, inserendo dati più precisi.
N.B. L'Opinione di Caasa® è un servizio sperimentale realizzato tramite tecniche di Intelligenza Artificiale, fornito senza alcuna garanzia di correttezza e completezza. Leggi il disclaimer o segnalaci un problema.
IMMAGINI
IN SINTESI
PROPOSTO DA:
asteaffari.com
DESCRIZIONE
da ristrutturare con posto auto con giardino da ristrutturare senza ascensore in asta giudiziaria
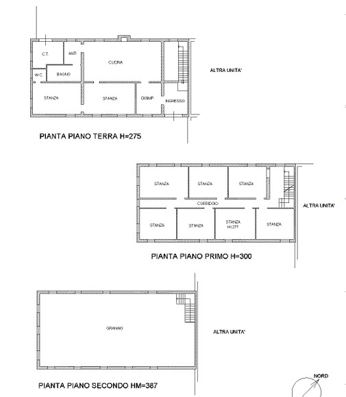
Rif. A.A.VE194297-25 Vendita all'asta - casale con terreno in data 24 novembre 2025 Descrizione: trattasi di un complesso immobiliare costituito da un ampio fabbricato rurale, dalle sue pertinenze e dalle aree agricole a servizio del fondo (mq.17.055 ca.). Esso è ubicato nel Comune di Marcon (Ve), in località Gaggio. Il fabbricato è posto al centro dell'area di proprietà, che risulta parzialmente delimitata sul fronte principale, mentre gli altri lati della proprietà, che ha una conformazione quadrangolare, ne sono privi. L'edificio principale si sviluppa per tre livelli fuori terra, con strutture in elevazione in laterizio, solai in legno, copertura del tetto a due falde, facciate finite in laterizio lavorato a faccia vista. Il complesso è in stato di abbandono. Superficie complessiva mq.435. L'immobile viene venduto tramite asta giudiziaria, ed il prezzo indicato si riferisce al prezzo minimo accettato per la partecipazione all'asta . Aste-Affari fornisce un servizio di assistenza e consulenza tecnica , legale, fiscale e finanziaria su acquisti all'asta e affari immobiliari , al fine di rendere più facile e sicuro l'acquisto di un immobile proveniente dal mercato giudiziario oppure da occasioni presenti sul mercato immobiliare . Analisi di fattibilità , tecnica, burocratica, finanziaria , legale , esame problematiche e vincoli , conteggio costi accessori ed occulti, assistenza in tutte le fasi della procedura fino alla consegna delle chiavi dell'immobile . L'acquisto può essere finanziato tramite mutuo , e , ove possibile , anche in pre-asta tramite procedura di saldo-stralcio . Soluzioni personalizzate per i debitori . Prezzo minimo base asta : euro 116.437,00 Per info aggiuntive , prenotazione visione, consulenza ed assistenza Studio di Consulenza : 'aste-affari.com' Info : 042217801118 - 04221780185 www.aste-affari.com



