Valutazione immobiliare indipendente, accurata e gratuita
L'Opinione di Caasa® per l'appartamento in vendita a Marcon a 245.000 € (cod.64f15000)
Secondo Caasa, per l'appartamento in vendita a Marcon, la richiesta di 245.000 € è significativamente vantaggiosa rispetto agli annunci simili.
Analisi immobiliare
L'appartamento è proposto in vendita a
245.000 € per una
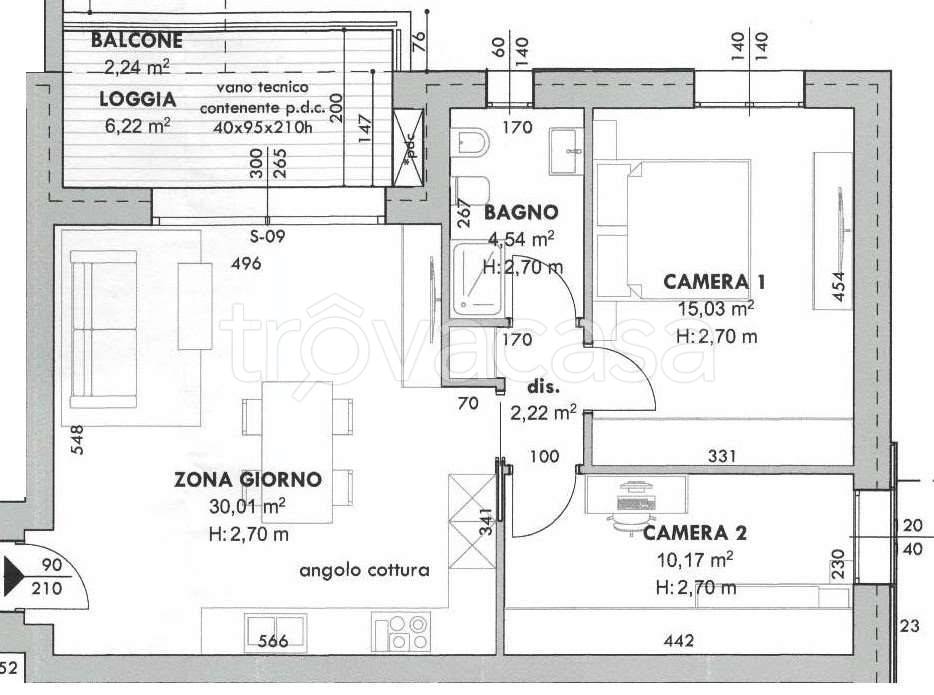
superficie commerciale di
95 m² e quindi ad un prezzo per metro quadrato pari a
2578 €/m²
.
Questo valore
è significativamente più basso di quello stimato da Caasa per immobili in vendita simili per tipologia, caratteristiche e classe energetica, che è compreso tra
3.319 €/m² e
3.578 €/m².
Sono stati utilizzati nel raffronto i soli valori medi cittadini per appartamenti (da 2.075 €/m² a 3.245 €/m²) e per trivani (da 2.040 €/m² a 3.370 €/m²), visto che non è stato possibile determinare in modo affidabile la posizione dell'immobile. All'elaborazione della stima ha però contribuito anche la classe energetica (A+) oltre alla condizione dell'immobile (di nuova costruzione) e alla presenza di alcune caratteristiche significative come il garage. Per questi motivi l'intervallo dei valori considerati accettabili per l'offerta è comunque ampio.
Mercato immobiliare a Marcon
Per quanto riguarda più in generale la città di Marcon, sono presenti al momento più di 150 annunci per
appartamenti in vendita (meno del 5% dell'intera provincia)
e il maggior numero di annunci per questa tipologia sono relativi alla zona di Gaggio.
Per quanto riguarda la dinamica dei prezzi, negli ultimi 6 mesi i prezzi medi in tutta la città per appartamenti in vendita sono
in sostanziale aumento (+5,81%).
NOVITÀ Il risultato che vedi dipende dai dati che siamo riusciti ad estrarre dall'annuncio: ottieni una stima più accuranta di questo immobile, inserendo dati più precisi.
N.B. L'Opinione di Caasa® è un servizio sperimentale realizzato tramite tecniche di Intelligenza Artificiale, fornito senza alcuna garanzia di correttezza e completezza. Leggi il disclaimer o segnalaci un problema.
IMMAGINI
IN SINTESI
PROPOSTO DA:
REALTY IMMOBILIARE
DESCRIZIONE
di nuova costruzione con posto auto con garage con terrazza di nuova costruzione con giardino con termocondizionamento
Presentiamo un nuovo complesso residenziale di prossima realizzazione, situato in posizione centrale e strategica, perfetta per chi desidera vivere a pochi passi da tutti i servizi e le comodità del centro cittadino. Al piano secondo appartamento 2 camere , composto da soggiorno pranzo di 30 mq, loggia, disimpegno, 2 ampie camere, bagno, garage e posto auto. Gli appartamenti, sono tutti progettati con un occhio attento alla sostenibilità, vantano una classe energetica elevata, garantendo comfort e risparmio energetico. La tecnologia costruttiva all'avanguardia assicura non solo un design moderno e accattivante, ma anche la massima sicurezza e durabilità. Ogni appartamento è dotato di riscaldamento a pavimento con impianto autonomo in pompa di calore, 3kw di fotovoltaico, tapparelle motorizzate, predisposizione dell’impianto di condizionamento, di allarme e di automazione del basculante. Ogni unità è realizzata con un capitolato di alta qualità, che include finiture eleganti e materiali selezionati, per offrire un ambiente accogliente e raffinato. Questi sono immobili dove innovazione e comfort si incontrano! Rif. A995-10V


