Valutazione immobiliare indipendente, accurata e gratuita
Terreno agricolo in vendita a Jesolo in zona Ca' Gamba a 82.000 € (cod.656f7043)
Caasa non ha sufficienti informazioni per commentare il terreno agricolo a Jesolo in zona Ca' Gamba - 656f7043.
Analisi immobiliare
I dati in posseso di Caasa per quest'immobile sono insufficienti, inaffidabili o contraddittori per proporre un'analisi attendibile.
Mercato immobiliare a Jesolo
Per quanto riguarda più in generale la città di Jesolo, sono presenti al momento più di cinquanta annunci per
terreni agricoli in vendita (meno del 5% dell'intera provincia)
e il maggior numero di annunci per questa tipologia sono relativi alla zona di Cortellazzo, mentre nella zona di Ca' Gamba è presente un numero significativamente inferiore di annunci.
Vedi altre informazioni direttamente su
Mercato-Immobiliare.info
NOVITÀ Il risultato che vedi dipende dai dati che siamo riusciti ad estrarre dall'annuncio: ottieni una stima più accuranta di questo immobile, inserendo dati più precisi.
N.B. L'Opinione di Caasa® è un servizio sperimentale realizzato tramite tecniche di Intelligenza Artificiale, fornito senza alcuna garanzia di correttezza e completezza. Leggi il disclaimer o segnalaci un problema.
IMMAGINI
IN SINTESI
DESCRIZIONE
con giardino
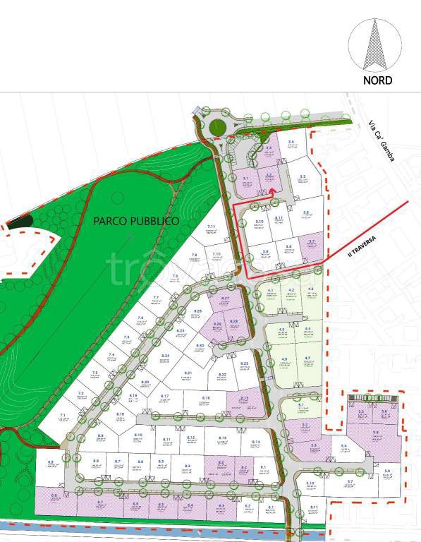
Jesolo Paese, all'interno del comparto urbanistico 3A, di prossima urbanizzazione, con ingresso dalla II traversa di via Cà Gamba, vendiamo lotto di terreno edificabile, avente superficie fondiaria di 533 mq con volumetria disponibile pari a 420 mc, ideale per la costruzione di una villa unifamiliare. Oneri di urbanizzazione primari e secondari compresi nel prezzo. Lavori di urbanizzazione da completare, ad opera del Consorzio Urbanistico, entro il 2028. Per approfondimenti e/o info prego contattare l'agenzia immobiliare

