Valutazione immobiliare indipendente, accurata e gratuita
L'Opinione di Caasa® per l'appartamento in vendita a Jesolo in zona Lido a 145.000 € (cod.65588849)
Secondo Caasa, per l'appartamento in vendita a Jesolo in zona Lido, la richiesta di 145.000 € è significativamente vantaggiosa rispetto agli annunci simili.
Analisi immobiliare
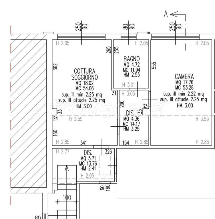
L'appartamento, situato vicino a Piazza Torino nella zona OMI R1, è proposto in vendita a
145.000 € per una
superficie commerciale di
48 m² e quindi ad un prezzo per metro quadrato pari a
3020 €/m²
.
Tale prezzo
è più conveniente di quello stimato da Caasa per immobili in vendita simili per tipologia, caratteristiche, classe energetica e localizzati nella stessa zona OMI, che è compreso tra
3.469 €/m² e
3.773 €/m².
La conoscenza con buona approssimazione della localizzazione dell'immobile ha consentito di utilizzare come raffronto i dati medi elaborati esattamente nella zona OMI di appertenenza (ZONA RURALE) per appartamenti (da 3.580 €/m² a 5.880 €/m²) e per attici (da 3.435 €/m² a 6.200 €/m²). Inoltre, Caasa ha potuto affinare la stima anche con la conoscenza della classe energetica (G) oltre che di alcune caratteristiche significative come il posto auto. Per i motivi esposti i valori accettabili per l'offerta costituiscono un intervallo abbastanza limitato.
Mercato immobiliare a Jesolo
Per quanto riguarda più in generale la città di Jesolo, sono presenti al momento ben oltre mille annunci per
appartamenti in vendita (quasi il 20% dell'intera provincia)
e il maggior numero di annunci per questa tipologia sono relativi proprio alla zona di Lido.
La richiesta media nella zona dove sorge l'appartamento (Lido pressi Piazza Torino) è pari a
4.800 €/m² e ne fa la più pregiata della città .
Relativamente alla dinamica dei prezzi, possiamo dire che negli ultimi 6 mesi i prezzi medi in tutta la città per appartamenti in vendita sono
in aumento (+4,22%).
NOVITÀ Il risultato che vedi dipende dai dati che siamo riusciti ad estrarre dall'annuncio: ottieni una stima più accuranta di questo immobile, inserendo dati più precisi.
N.B. L'Opinione di Caasa® è un servizio sperimentale realizzato tramite tecniche di Intelligenza Artificiale, fornito senza alcuna garanzia di correttezza e completezza. Leggi il disclaimer o segnalaci un problema.
IMMAGINI
IN SINTESI
PROPOSTO DA:
Agenzia Walter Rigato
DESCRIZIONE
con posto auto con terrazza con termocondizionamento con angolo cottura con giardino con balcone
Nelle immediate vicinanze di Piazza Torino, sul limitare della Pineta di Jesolo, siamo a proporre un comodo appartamento bilocale al secondo e ultimo piano di una palazzina di sole 8 unità abitative. L'immobile si compone di ingresso, soggiorno con angolo cottura, disimpegno, una spaziosa camera da letto, un bagno e un comodo terrazzino dove è possibile sistemare l'arredo da esterno. L'immobile si presenta in buone condizioni di manutenzione e dotato di riscaldamento con radiatori e aria condizionata. Completa l'offera un posto auto assegnato sullo scoperto condominiale. Le immagini presenti nell’annuncio hanno esclusivamente scopo illustrativo e non costituiscono elemento contrattuale; l’immobile potrebbe presentare caratteristiche e finiture differenti da quanto raffigurato. Per informazioni e visite contattare +39 3938508510 ; +39 3482738532 ; +39 3405709005


