Valutazione immobiliare indipendente, accurata e gratuita
Appartamento in vendita a Fossalta di Portogruaro a 38.423 € (cod.65a35578)
Caasa non ha sufficienti informazioni per commentare l'appartamento in vendita a Fossalta di Portogruaro - 65a35578.
Analisi immobiliare
I dati in posseso di Caasa per quest'immobile sono insufficienti, inaffidabili o contraddittori per proporre un'analisi attendibile.
Mercato immobiliare a Fossalta di Portogruaro
Per quanto riguarda più in generale il comune di Fossalta di Portogruaro, sono presenti al momento più di trenta annunci per
appartamenti in vendita (meno dell'1% dell'intera provincia) .
Per quanto riguarda la dinamica dei prezzi, negli ultimi 6 mesi i prezzi medi in tutto il comune per appartamenti in vendita sono
in deciso calo (-9,47%).
NOVITÀ Il risultato che vedi dipende dai dati che siamo riusciti ad estrarre dall'annuncio: ottieni una stima più accuranta di questo immobile, inserendo dati più precisi.
N.B. L'Opinione di Caasa® è un servizio sperimentale realizzato tramite tecniche di Intelligenza Artificiale, fornito senza alcuna garanzia di correttezza e completezza. Leggi il disclaimer o segnalaci un problema.
IMMAGINI
IN SINTESI
PROPOSTO DA:
asteaffari.com
DESCRIZIONE
da ristrutturare con posto auto con giardino con cantina in asta giudiziaria con termocondizionamento da ristrutturare con riscaldamento autonomo senza ascensore
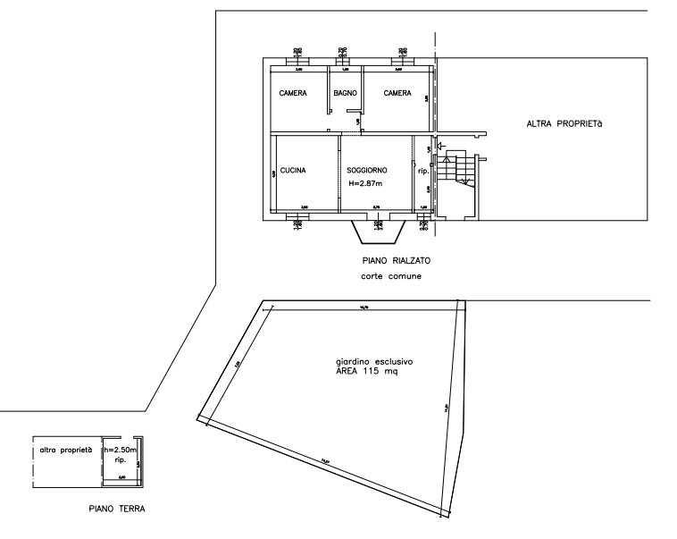
Rif. A.A.218-24 Vendita all'asta - appartamento al piano terra rialzato in data 11 giugno 2026 Descrizione: trattasi di un appartamento ubicato al piano rialzato posto sul lato sinistro percorrendo la prima rampa di scala, di un edificio residenziale sito nel comune di Portogruaro (VE). L'unità immobiliare è costituita da ingresso, ripostiglio, soggiorno, cucina, 2 camere e un bagno. Al piano secondo con ingresso centrale vi è una soffitta che si sviluppa sulla metà a destra del fabbricato ad uso ripostiglio. All'unità imm.re è attribuita una porzione di giardino ad uso esclusivo e un ripostiglio esterno. Superficie commerciale complessiva mq.100. Prezzo minimo base asta : da euro 38.423,00 L'immobile viene venduto tramite asta giudiziaria, ed il prezzo indicato si riferisce al prezzo minimo accettato per la partecipazione all'asta. Aste-Affari fornisce un servizio di assistenza e consulenza tecnica, legale, fiscale e finanziaria su acquisti all'asta e affari immobiliari, al fine di rendere più facile e sicuro l'acquisto di un immobile proveniente dal mercato giudiziario oppure da occasioni presenti sul mercato immobiliare. Analisi di fattibilità, tecnica, burocratica, finanziaria, legale, esame problematiche e vincoli, conteggio costi accessori ed occulti, assistenza in tutte le fasi della procedura fino alla consegna delle chiavi dell'immobile. L'acquisto può essere finanziato tramite mutuo, e, ove possibile anche in pre-asta tramite procedura di saldo-stralcio. Per info aggiuntive, prenotazione visione, consulenza ed assistenza su asta : Studio di Consulenza : "aste-affari.com" info: 04221781118 04221780185 www.aste-affari.com Sei un debitore ? Chiamaci ! Abbiamo soluzioni personalizzate anche per te

