Valutazione immobiliare indipendente, accurata e gratuita
Casa indipendente in vendita a Fiesso d'Artico (cod.6592511a)
Caasa non ha sufficienti informazioni per commentare la casa indipendente in vendita a Fiesso d'Artico - 6592511a.
Analisi immobiliare
I dati in posseso di Caasa per quest'immobile sono insufficienti, inaffidabili o contraddittori per proporre un'analisi attendibile.
Mercato immobiliare a Fiesso d'Artico
Per quanto riguarda più in generale il comune di Fiesso d'Artico, sono presenti al momento più di cinquanta annunci per
case indipendenti in vendita (meno dell'1% dell'intera provincia) .
Possiamo inoltre considerare che in tutto il comune negli ultimi 6 mesi, i prezzi per case indipendenti in vendita sono
in leggera diminuzione (-2,97%).
NOVITÀ Il risultato che vedi dipende dai dati che siamo riusciti ad estrarre dall'annuncio: ottieni una stima più accuranta di questo immobile, inserendo dati più precisi.
N.B. L'Opinione di Caasa® è un servizio sperimentale realizzato tramite tecniche di Intelligenza Artificiale, fornito senza alcuna garanzia di correttezza e completezza. Leggi il disclaimer o segnalaci un problema.
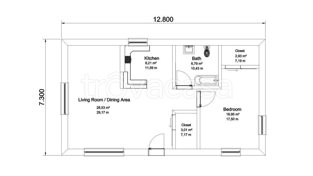
IMMAGINI
IN SINTESI
PROPOSTO DA:
Simplex Domus S.R.L.
DESCRIZIONE
di nuova costruzione con posto auto con giardino di nuova costruzione in asta giudiziaria
Asta fabbricato a Fiesso d`Artico (VE) [SY23643] Via Barbariga, 7, 30032 Fiesso VE, Italia Piena proprietà del fabbricato ad uso uffici di circa mq. 2.082,00 costituito da n. 3 piani fuori terra, oltre ad un piano interrato e copertura edificato sopr […]
