Valutazione immobiliare indipendente, accurata e gratuita
Casa indipendente in vendita a Fiesso d'Artico a 70.000 € (cod.633363e2)
Caasa non ha sufficienti informazioni per commentare la casa indipendente in vendita a Fiesso d'Artico - 633363e2.
Analisi immobiliare
I dati in posseso di Caasa per quest'immobile sono insufficienti, inaffidabili o contraddittori per proporre un'analisi attendibile.
Mercato immobiliare a Fiesso d'Artico
Per quanto riguarda più in generale il comune di Fiesso d'Artico, sono presenti al momento circa cento annunci per
case indipendenti in vendita (meno dell'1% dell'intera provincia) .
Possiamo inoltre considerare che in tutto il comune negli ultimi 6 mesi, i prezzi per case indipendenti in vendita sono
sostanzialmente stabili (+0,77%).
NOVITÀ Il risultato che vedi dipende dai dati che siamo riusciti ad estrarre dall'annuncio: ottieni una stima più accuranta di questo immobile, inserendo dati più precisi.
N.B. L'Opinione di Caasa® è un servizio sperimentale realizzato tramite tecniche di Intelligenza Artificiale, fornito senza alcuna garanzia di correttezza e completezza. Leggi il disclaimer o segnalaci un problema.
IMMAGINI
IN SINTESI
PROPOSTO DA:
VALORE CASA
Via Riviera del Brenta, 158, Fiesso d'Artico (VE)
Verificata da Caasa®
DESCRIZIONE
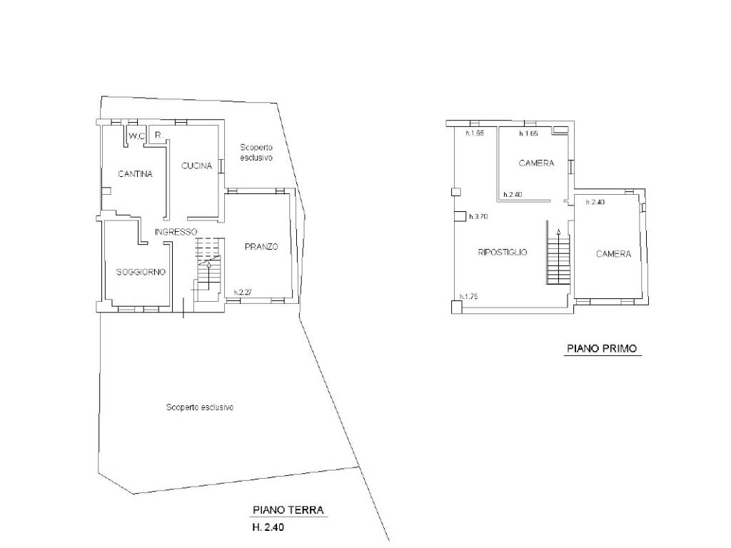
da ristrutturare da ristrutturare
FIESSO D'ARTICO - In zona di confine tra Fiesso e Dolo, proponiamo in vendita Rustico disposto su due livelli con scoperto privato. Il fabbricato attualmente è da ristrutturare. La soluzione, essendo completamente da riattare, può essere personalizzata e adattata alle proprie esigenze rispettando i vincoli paesaggistici. Se credi che questa soluzione faccia al caso tuo, non esitare a contattarci per fissare un appuntamento informativo! Rif. 1701 VALORE CASA - FIESSO D'ARTICO VIA RIVIERA DEL BRENTA N° 158 FIESSO D'ARTICO (VE) 30032 CELL. 393.6198830 L'indirizzo è puramente casuale per motivi di privacy

