Valutazione immobiliare indipendente, accurata e gratuita
Appartamento in vendita a Dolo a 330.000 € (cod.649a68a7)
Caasa non ha sufficienti informazioni per commentare l'appartamento in vendita a Dolo - 649a68a7.
Analisi immobiliare
I dati in posseso di Caasa per quest'immobile sono insufficienti, inaffidabili o contraddittori per proporre un'analisi attendibile.
Mercato immobiliare a Dolo
Per quanto riguarda più in generale il comune di Dolo, sono presenti al momento più di 200 annunci per
appartamenti in vendita (meno del 5% dell'intera provincia) .
La dinamica dei prezzi in tutto il comune mostra che negli ultimi 6 mesi, i prezzi per appartamenti in vendita sono
in forte aumento (+10,98%).
NOVITÀ Il risultato che vedi dipende dai dati che siamo riusciti ad estrarre dall'annuncio: ottieni una stima più accuranta di questo immobile, inserendo dati più precisi.
N.B. L'Opinione di Caasa® è un servizio sperimentale realizzato tramite tecniche di Intelligenza Artificiale, fornito senza alcuna garanzia di correttezza e completezza. Leggi il disclaimer o segnalaci un problema.
IMMAGINI
IN SINTESI
PROPOSTO DA:
Immobiliare Galliate
DESCRIZIONE
da ristrutturare con giardino con termocondizionamento con angolo cottura da ristrutturare con riscaldamento autonomo senza ascensore
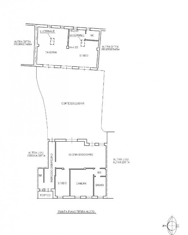
Proponiamo in vendita una splendida soluzione abitativa disponibile da subito, situata nella zona più bella di Dolo, il vero cuore pulsante della località rivierasca. Questa rinomata cittadina è apprezzata non solo per la sua bellezza paesaggistica e storica, ma anche per la sua strategica posizione tra Venezia e Padova. Dolo offre un'ampia gamma di servizi essenziali: negozi, scuole di ogni grado, ospedale e supermercati sono facilmente accessibili. Il centro storico vibrante invita a scoprire ristoranti raffinati e locali vivaci che attraggono visitatori tutto l'anno. L'immobile proposto è un luminoso appartamento al piano terra dotato di ingresso indipendente ed è composto da: ingresso accogliente, soggiorno con cucina a vista perfetta per intrattenere amici e famiglia, due camere da letto spaziose e un bagno moderno. Un elemento distintivo dell'appartamento è il grazioso giardino privato interno che misura circa 159 mq - ideale per momenti all'aperto o semplicemente per godersi la tranquillità del verde circostante. Oltre allo spazio esterno principale, troviamo una deliziosa dependance open space caratterizzata da ampie vetrate che creano connessioni armoniose tra indoor ed outdoor; gli eleganti travetti a vista conferiscono calore all'ambiente. Completata con bagno privato, questa parte della casa può essere adibita a studio personale, palestra privata oppure come ulteriore appartamentino dedicato agli ospiti o alle feste. Non lasciarti sfuggire questa opportunità unica! Contattaci oggi stesso per ulteriori informazioni, la visionare delle foto averrà previo colloquio telefonico. Visitate il nostro sito: sempre aggiornato con le nostre ultime proposte immobiliari! Oppure venite a trovarci in agenzia: Gaia Immobiliare di Silvia Polato via L. da Vinci 15/5 Vigonovo (VE); o chiamate lo 049/9832488, o inviateci un email al seguente indirizzo: . Saremo sempre a vostra disposizione per qualsiasi informazione! La nostra agenzia opera principalmente nelle zone di Vigonovo, Strà, Fossò, Camponogara, Fiesso d[…]






