Valutazione immobiliare indipendente, accurata e gratuita
Appartamento in vendita a Chioggia in zona Sottomarina a 120.000 € (cod.650da74e)
Caasa non ha sufficienti informazioni per commentare l'appartamento a Chioggia in zona Sottomarina - 650da74e.
Analisi immobiliare
I dati in posseso di Caasa per quest'immobile sono insufficienti, inaffidabili o contraddittori per proporre un'analisi attendibile.
Mercato immobiliare a Chioggia
Per quanto riguarda più in generale la città di Chioggia, sono presenti al momento ben oltre mille annunci per
appartamenti in vendita (quasi il 20% dell'intera provincia)
e il maggior numero di annunci per questa tipologia sono relativi proprio alla zona di Sottomarina.
La richiesta media nella zona dove sorge l'appartamento (Sottomarina) è pari a
2.790 €/m² e ne fa la più pregiata della città .
Possiamo inoltre considerare che in tutta la città negli ultimi 6 mesi, i prezzi per appartamenti in vendita sono
in leggero aumento (+2,73%).
NOVITÀ Il risultato che vedi dipende dai dati che siamo riusciti ad estrarre dall'annuncio: ottieni una stima più accuranta di questo immobile, inserendo dati più precisi.
N.B. L'Opinione di Caasa® è un servizio sperimentale realizzato tramite tecniche di Intelligenza Artificiale, fornito senza alcuna garanzia di correttezza e completezza. Leggi il disclaimer o segnalaci un problema.
IMMAGINI
IN SINTESI
PROPOSTO DA:
IMMOBILIARE ABITARE S.A.S.
DESCRIZIONE
da ristrutturare da ristrutturare
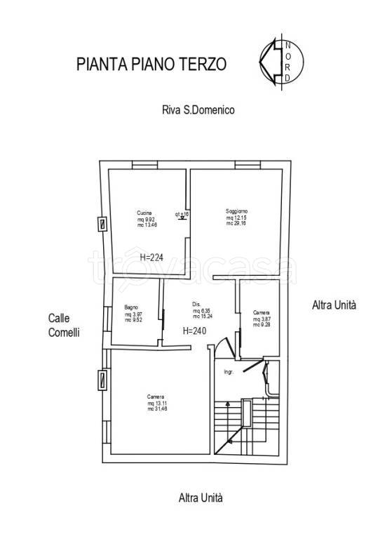
Nel cuore del centro storico di Chioggia, inserito in un contesto di sole 2 unità, proponiamo in vendita un appartamento all'ultimo piano con splendida vista sulla laguna e su Sottomarina. L’immobile, da ristrutturare, si compone attualmente di un ingresso con disimpegno, una zona giorno con cucina divisa dal soggiorno affacciati sul canale, e una zona notte con due camere da letto e un bagno. Sono inoltre presenti una soffitta di proprietà e un magazzino comune ideale per riporre le biciclette. La posizione centrale permette di raggiungere a piedi tutti i servizi, i ristoranti e le calli più caratteristiche. Un’occasione unica per vivere la vera atmosfera di Chioggia, personalizzando ogni dettaglio della propria casa con vista sulla laguna. Vuoi conoscere altro di questo immobile? Oppure quello che stai vedendo non rispecchia le tue esigenze? Mandaci un messaggino tramite WHATSAPP al numero +39 342 7239021 e riceverai in maniera veloce e gratuita direttamente sul tuo smartphone tutte le informazioni, foto e planimetrie che desideri


