Valutazione immobiliare indipendente, accurata e gratuita
Casa semindipendente in vendita a Cavallino-Treporti a 114.000 € (cod.658314c7)
Caasa non ha sufficienti informazioni per commentare la casa semindipendente a Cavallino-Treporti - 658314c7.
Analisi immobiliare
I dati in posseso di Caasa per quest'immobile sono insufficienti, inaffidabili o contraddittori per proporre un'analisi attendibile.
Mercato immobiliare a Cavallino-Treporti
Per quanto riguarda più in generale il comune di Cavallino-Treporti, sono presenti al momento più di cento annunci per
case semindipendenti in vendita (meno del 5% dell'intera provincia)
e il maggior numero di annunci per questa tipologia sono relativi alla zona di Ca' Savio.
La dinamica dei prezzi in tutto il comune mostra che negli ultimi 6 mesi, i prezzi per case semindipendenti in vendita sono
in deciso calo (-8,99%).
NOVITÀ Il risultato che vedi dipende dai dati che siamo riusciti ad estrarre dall'annuncio: ottieni una stima più accuranta di questo immobile, inserendo dati più precisi.
N.B. L'Opinione di Caasa® è un servizio sperimentale realizzato tramite tecniche di Intelligenza Artificiale, fornito senza alcuna garanzia di correttezza e completezza. Leggi il disclaimer o segnalaci un problema.
IMMAGINI
IN SINTESI
PROPOSTO DA:
asteaffari.com
DESCRIZIONE
da ristrutturare con posto auto con terrazza con giardino con termocondizionamento con angolo cottura da ristrutturare con riscaldamento autonomo in asta giudiziaria senza ascensore
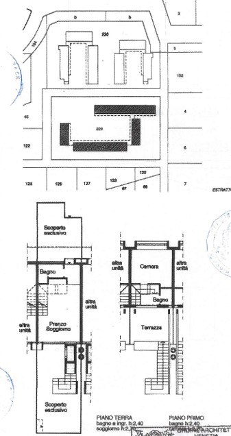
Rif. A.A.92-24 Vendita all'asta - schiera centrale su due piani in data 14 maggio 2026 Descrizione: trattasi di un'abitazione sviluppata su due livelli, con area scoperta, facente parte del residence Sol Leone con a servizio parco e piscina condominiale, in discreto stato di manutenzione, collocato nelle immediate vicinanze della spiaggia del Faro. L'unità immobiliare, della superficie commerciale complessiva di ca.80 mq., è composta da un soggiorno al piano rialzato in continuità alla terrazza privata, con un angolo cottura ed il bagno posto nel retro della cucina; il piano superiore, accessibile tramite scala interna, è costituito da due camere con disimpegno e bagnetto. Completa la proprietà un posto auto scoperto. Prezzo minimo base asta : da euro 114.000,00 L'immobile viene venduto tramite asta giudiziaria, ed il prezzo indicato si riferisce al prezzo minimo accettato per la partecipazione all'asta. Aste-Affari fornisce un servizio di assistenza e consulenza tecnica, legale, fiscale e finanziaria su acquisti all'asta e affari immobiliari, al fine di rendere più facile e sicuro l'acquisto di un immobile proveniente dal mercato giudiziario oppure da occasioni presenti sul mercato immobiliare. Analisi di fattibilità, tecnica, burocratica, finanziaria, legale, esame problematiche e vincoli, conteggio costi accessori ed occulti, assistenza in tutte le fasi della procedura fino alla consegna delle chiavi dell'immobile. L'acquisto può essere finanziato tramite mutuo, e, ove possibile anche in pre-asta tramite procedura di saldo-stralcio. Per info aggiuntive, prenotazione visione, consulenza ed assistenza su asta : Studio di Consulenza : "aste-affari.com" info: 04221781118 04221780185 www.aste-affari.com Sei un debitore ? Chiamaci ! Abbiamo soluzioni personalizzate anche per te




