Valutazione immobiliare indipendente, accurata e gratuita
Casa indipendente a Caorle in zona Porto Santa Margherita a 308.000 € (cod.656ca7fc)
Caasa non ha sufficienti informazioni per commentare la casa indipendente a Caorle Porto Santa Margherita - 656ca7fc.
Analisi immobiliare
I dati in posseso di Caasa per quest'immobile sono insufficienti, inaffidabili o contraddittori per proporre un'analisi attendibile.
Mercato immobiliare a Caorle
Per quanto riguarda più in generale il comune di Caorle, sono presenti al momento più di 200 annunci per
case indipendenti in vendita (meno del 5% dell'intera provincia)
e il maggior numero di annunci per questa tipologia sono relativi proprio alla zona di Porto Santa Margherita.
La richiesta media nella zona dove sorge la casa indipendente (Porto Santa Margherita) è pari a
3.230 €/m² e ne fa la più pregiata del comune .
Per quanto riguarda la dinamica dei prezzi, negli ultimi 6 mesi i prezzi medi in tutto il comune per case indipendenti in vendita sono
in sostanziale aumento (+6,55%).
NOVITÀ Il risultato che vedi dipende dai dati che siamo riusciti ad estrarre dall'annuncio: ottieni una stima più accuranta di questo immobile, inserendo dati più precisi.
N.B. L'Opinione di Caasa® è un servizio sperimentale realizzato tramite tecniche di Intelligenza Artificiale, fornito senza alcuna garanzia di correttezza e completezza. Leggi il disclaimer o segnalaci un problema.
IMMAGINI
IN SINTESI
PROPOSTO DA:
MdM Home Agenzia Immobiliare - Immobilien
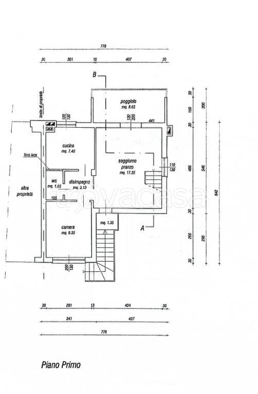
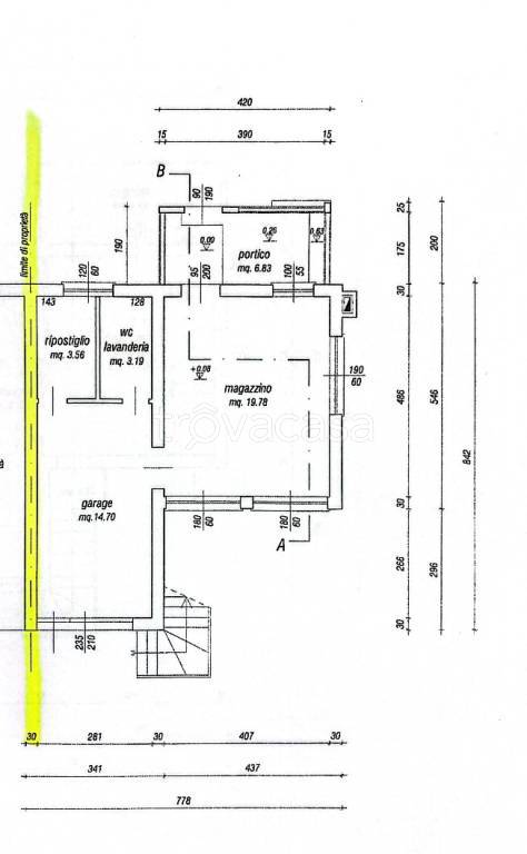
DESCRIZIONE
da ristrutturare con terrazza con posto auto con garage con giardino con balcone da ristrutturare
Nel cuore di Porto Santa Margherita, a Caorle, in una posizione tranquilla ma centrale e a pochi passi dalla spiaggia, proponiamo in vendita una splendida villetta bifamiliare che rappresenta un’opportunità davvero rara. La casa si trova all’interno di una traversa chiusa al traffico, accessibile esclusivamente ai residenti: un contesto riservato e silenzioso, ideale per chi desidera vivere il mare senza rinunciare alla privacy. L’immobile, libero su tre lati e caratterizzato da un’ottima esposizione a nord, sud e ovest, è avvolto dalla luce naturale durante tutto l’arco della giornata. Gli spazi generosi la rendono perfetta per famiglie o per chi è alla ricerca di ambienti ampi e confortevoli, da modellare secondo le proprie esigenze. All’esterno, un grande giardino abbraccia la proprietà, creando un’oasi verde dove rilassarsi, mentre i balconi offrono piacevoli affacci per godersi il sole e la quiete del contesto. La casa è completamente da ristrutturare: una caratteristica che diventa un vero punto di forza per chi desidera personalizzare ogni dettaglio e trasformarla nella propria dimora ideale, valorizzandone le eccellenti potenzialità. A completare la proprietà, posti auto e garage garantiscono praticità e comodità nella vita quotidiana. (Le ultime immagini sono dei Rendering, solo per dimostrare come potrebbe essere la casa ristrutturata, non sono reali) Una soluzione unica nel suo genere, pronta a diventare la casa che hai sempre immaginato. Contattaci per maggiori informazioni e per prenotare una visita


