Valutazione immobiliare indipendente, accurata e gratuita

L'Opinione di Caasa® per l'appartamento in vendita a Caorle a 370.000 € (cod.64e6b80a)

Secondo Caasa, per l'appartamento in vendita a Caorle, la richiesta di 370.000 € è leggermente svantaggiosa rispetto agli annunci simili.

Analisi immobiliare
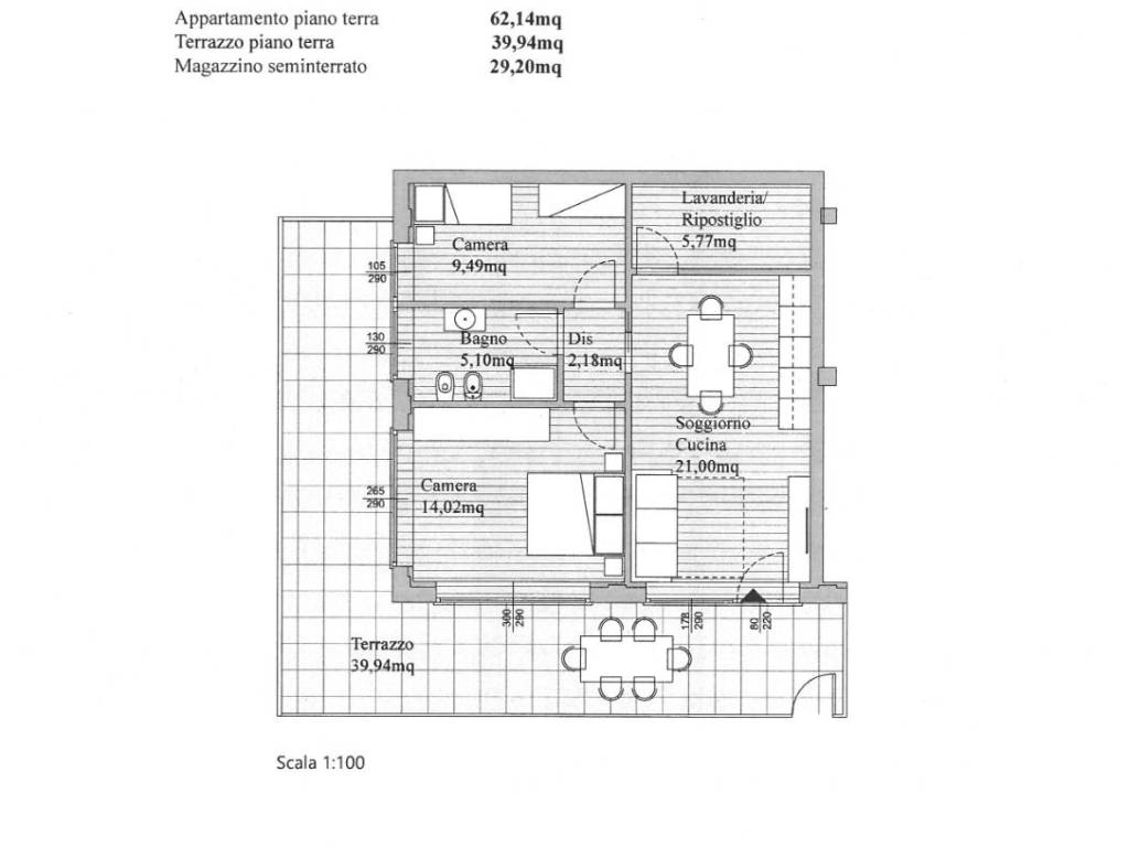
L'appartamento, situato nella zona OMI B3, è proposto in vendita a 370.000 € per una superficie commerciale di 82 m² e quindi ad un prezzo per metro quadrato pari a 4512 €/m² .
Questo prezzo è di poco superiore a quello stimato da Caasa per immobili in vendita simili per tipologia e caratteristiche e localizzati nella stessa zona OMI, che è compreso tra 4.059 €/m² e 4.430 €/m². Grazie alla conoscenza con buona approssimazione della localizzazione dell'immobile, è stato possibile utilizzare come raffronto i dati medi elaborati esattamente nella zona OMI di appertenenza (ZONA BALNEARE LEVANTE E PONENTE). Anche se Caasa non è riuscita a determinare la classe energetica, ad affinare la stima ha contribuito anche lo stato dell'immobile (di nuova costruzione). Per queste considerazioni l'intervallo dei valori accettabili per l'offerta è relativamente limitato.

Mercato immobiliare a Caorle
Per quanto riguarda più in generale il comune di Caorle, sono presenti al momento più di 300 annunci per appartamenti in vendita (meno del 5% dell'intera provincia) e il maggior numero di annunci per questa tipologia sono relativi alla zona di Porto Santa Margherita.

Possiamo inoltre considerare che in tutto il comune negli ultimi 6 mesi, i prezzi per appartamenti in vendita sono in deciso aumento (+9,30%).

NOVITÀ Il risultato che vedi dipende dai dati che siamo riusciti ad estrarre dall'annuncio: ottieni una stima più accuranta di questo immobile, inserendo dati più precisi.

N.B. L'Opinione di Caasa® è un servizio sperimentale realizzato tramite tecniche di Intelligenza Artificiale, fornito senza alcuna garanzia di correttezza e completezza. Leggi il disclaimer o segnalaci un problema.

IMMAGINI

IN SINTESI

Prezzo:
370.000 €
Superficie:
82 m²
Prezzo al m²:
4512 €/m²
Piano:
n.d.
Bagni:
1
Classe energetica:
n.d.
Città:
Caorle (VE)
Zona OMI:
B3 (ZONA BALNEARE LEVANTE E PONENTE)
Indirizzo:
Pubblicato:
ven 3 ottobre 2025

PROPOSTO DA:

AGENZIA D'AFFARI ROSSI

DESCRIZIONE

di nuova costruzione di nuova costruzione

Nuovo intervento al cond. Luxembourg, a pochi passi dalla spiaggia di Ponente, in tranquillo contesto residenziale e dotati di servizi tutto l’anno, sono in fase di realizzo 4 appartamenti di varie d

  • immobiliare.it