Valutazione immobiliare indipendente, accurata e gratuita
Casa indipendente in vendita a Zero Branco a 106.950 € (cod.656e22a1)
Caasa non ha sufficienti informazioni per commentare la casa indipendente in vendita a Zero Branco - 656e22a1.
Analisi immobiliare
I dati in posseso di Caasa per quest'immobile sono insufficienti, inaffidabili o contraddittori per proporre un'analisi attendibile.
Mercato immobiliare a Zero Branco
Per quanto riguarda più in generale il comune di Zero Branco, sono presenti al momento più di cento annunci per
case indipendenti in vendita (meno del 5% dell'intera provincia) .
Relativamente alla dinamica dei prezzi, possiamo dire che negli ultimi 6 mesi i prezzi medi in tutto il comune per case indipendenti in vendita sono
in sostanziale aumento (+7,20%).
NOVITÀ Il risultato che vedi dipende dai dati che siamo riusciti ad estrarre dall'annuncio: ottieni una stima più accuranta di questo immobile, inserendo dati più precisi.
N.B. L'Opinione di Caasa® è un servizio sperimentale realizzato tramite tecniche di Intelligenza Artificiale, fornito senza alcuna garanzia di correttezza e completezza. Leggi il disclaimer o segnalaci un problema.
IMMAGINI
IN SINTESI
PROPOSTO DA:
asteaffari.com
DESCRIZIONE
da ristrutturare con posto auto con giardino con terrazza con termocondizionamento da ristrutturare con riscaldamento autonomo in asta giudiziaria senza ascensore
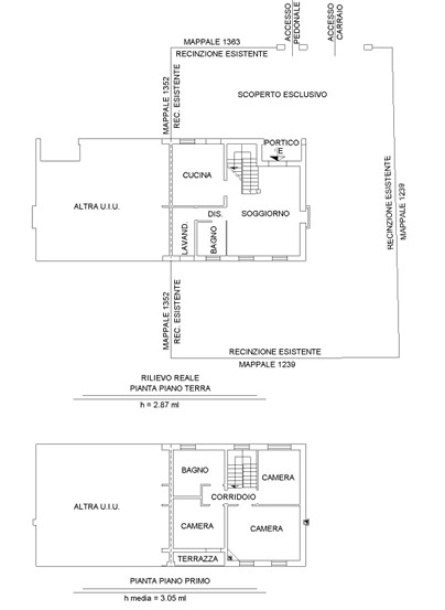
RIF. A.A.386-15 Vendita all'asta - porzione di bifamiliare in data 17 aprile 2026 Descrizione immobili : porzione di immobile residenziale del tipo bifamiliare, sviluppato su 2 livelli fuori terra con scoperto pertinenziale di 250 mq. Composta al piano terra da ingresso, soggiorno, cucina, lavanderia, wc, portico coperto e pergola; al piano primo n. 3 camere, bagno, corridoio e loggia. Superficie commerciale complessiva mq.165. Prezzo minimo base asta : da euro 106.950,00 L'immobile viene venduto tramite asta giudiziaria, ed il prezzo indicato si riferisce al prezzo minimo accettato per la partecipazione all'asta. Aste-Affari fornisce un servizio di assistenza e consulenza tecnica, legale, fiscale e finanziaria su acquisti all'asta e affari immobiliari, al fine di rendere più facile e sicuro l'acquisto di un immobile proveniente dal mercato giudiziario oppure da occasioni presenti sul mercato immobiliare. Analisi di fattibilità, tecnica, burocratica, finanziaria, legale, esame problematiche e vincoli, conteggio costi accessori ed occulti, assistenza in tutte le fasi della procedura fino alla consegna delle chiavi dell'immobile. L'acquisto può essere finanziato tramite mutuo, e, ove possibile anche in pre-asta tramite procedura di saldo-stralcio. Per info aggiuntive, prenotazione visione, consulenza ed assistenza su asta : Studio di Consulenza : "aste-affari.com" info: 04221781118 04221780185 www.aste-affari.com Sei un debitore ? Chiamaci ! Abbiamo soluzioni personalizzate anche per te



