Valutazione immobiliare indipendente, accurata e gratuita
L'Opinione di Caasa® per la casa indipendente in vendita a Zero Branco a 355.000 € (cod.6552a989)
Secondo Caasa, per la casa indipendente in vendita a Zero Branco, la richiesta di 355.000 € è significativamente svantaggiosa rispetto agli annunci simili.
Analisi immobiliare
La casa indipendente è proposta in vendita a
355.000 € per una
superficie commerciale di
110 m² e quindi ad un prezzo per metro quadrato pari a
3227 €/m²
.
Tale prezzo
è meno conveniente di quello stimato da Caasa per immobili in vendita simili per tipologia, caratteristiche e classe energetica, che è compreso tra
2.288 €/m² e
2.569 €/m².
Sono stati utilizzati come raffronto i soli valori medi cittadini per case indipendenti (da 1.225 €/m² a 2.590 €/m²) e per ville (da 1.245 €/m² a 2.575 €/m²), visto che non è stato possibile determinare in modo affidabile la posizione dell'immobile. All'elaborazione della stima ha però contribuito anche la classe energetica (A+) oltre alla presenza di alcune caratteristiche significative come il garage. Per queste considerazioni i valori considerati accettabili per l'offerta costituiscono un intervallo comunque ampio.
Mercato immobiliare a Zero Branco
Per quanto riguarda più in generale il comune di Zero Branco, sono presenti al momento più di cento annunci per
case indipendenti in vendita (meno del 5% dell'intera provincia) .
Relativamente alla dinamica dei prezzi, possiamo dire che negli ultimi 6 mesi i prezzi medi in tutto il comune per case indipendenti in vendita sono
in aumento (+4,91%).
NOVITÀ Il risultato che vedi dipende dai dati che siamo riusciti ad estrarre dall'annuncio: ottieni una stima più accuranta di questo immobile, inserendo dati più precisi.
N.B. L'Opinione di Caasa® è un servizio sperimentale realizzato tramite tecniche di Intelligenza Artificiale, fornito senza alcuna garanzia di correttezza e completezza. Leggi il disclaimer o segnalaci un problema.
IMMAGINI
IN SINTESI
PROPOSTO DA:
IMMOBILZERO - AGENZIA IMMOBILIARE NUOVE IDEE DI MARCHI ANNALY & C SNC
DESCRIZIONE
con posto auto con garage con giardino con termocondizionamento con angolo cottura con riscaldamento autonomo
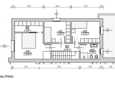
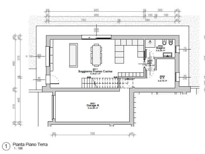
Schiera di testa di prossima costruzione, a pochi metri dal centro di Zero Branco. Questa proprietà, caratterizzata da un'ottima offre un perfetto equilibrio tra comfort e modernità.L'immobile si sviluppa su due livelli, al piano terra troviamo una zona soggiorno con angolo cottura di circa 40mq, un bagno un vano tecnico e un ampio garage comunicante di circa 24mq, salendo al piano primo un ampio disimpegno ci conduce nella zona notte composta da tre camere da letto tra cui una matrimoniale con cabina armadio e un bagno ben rifinito. All'esterno, un ampio giardino di circa 200 mq offre uno spazio ideale per godere di momenti di relax all'aria aperta, organizzare cene con amici o semplicemente per far giocare i bambini in un ambiente sicuro e riservato.Questa schiera rappresenta un'opportunità unica per chi desidera vivere in una zona tranquilla ma ben collegata, con tutti i servizi a portata di mano. Possibilità di personalizzare le finiture oltra alle già ottime finiture previste nel capitolato. Classe Energetica: A4

