Valutazione immobiliare indipendente, accurata e gratuita
L'Opinione di Caasa® per l'appartamento in vendita a Zero Branco a 355.000 € (cod.652e33a6)
Secondo Caasa, per l'appartamento in vendita a Zero Branco, la richiesta di 355.000 € è significativamente svantaggiosa rispetto agli annunci simili.
Analisi immobiliare
L'appartamento, situato nella zona OMI B2, è proposto in vendita (da AGENZIA IMMOBILIARE I PORTICI DI ENRICO FAVARO) a
355.000 € per una
superficie commerciale di
105 m² e quindi ad un prezzo per metro quadrato pari a
3380 €/m²
.
Questo prezzo
è meno vantaggioso di quello stimato da Caasa per immobili in vendita simili per tipologia, caratteristiche, classe energetica e localizzati nella stessa zona OMI, che è compreso tra
2.831 €/m² e
3.025 €/m².
La conoscenza con buona approssimazione della localizzazione dell'immobile ha consentito di utilizzare come raffronto i dati medi elaborati esattamente nella zona OMI di appertenenza (ZONA CENTRALE). Inoltre, Caasa ha potuto affinare la stima anche con la conoscenza della classe energetica (A+) oltre che dello stato dell'immobile (di nuova costruzione) e di alcune caratteristiche significative come il garage o la disponibilità di una cantina. Per queste considerazioni è possibile considerare un intervallo di valori accettabili per l'offerta abbastanza limitato.
Mercato immobiliare a Zero Branco
Per quanto riguarda più in generale il comune di Zero Branco, sono presenti al momento più di cento annunci per
appartamenti in vendita (meno del 5% dell'intera provincia) .
Possiamo inoltre considerare che in tutto il comune negli ultimi 6 mesi, i prezzi per appartamenti in vendita sono
in debole aumento (+1,59%).
NOVITÀ Il risultato che vedi dipende dai dati che siamo riusciti ad estrarre dall'annuncio: ottieni una stima più accuranta di questo immobile, inserendo dati più precisi.
N.B. L'Opinione di Caasa® è un servizio sperimentale realizzato tramite tecniche di Intelligenza Artificiale, fornito senza alcuna garanzia di correttezza e completezza. Leggi il disclaimer o segnalaci un problema.
IMMAGINI
IN SINTESI
PROPOSTO DA:
AGENZIA IMMOBILIARE I PORTICI DI ENRICO FAVARO
Via Cercariolo 2/a, Scorzè (VE)
Verificata da Caasa®
DESCRIZIONE
di nuova costruzione con posto auto con garage con giardino con terrazza con cantina con termocondizionamento di nuova costruzione con angolo cottura con riscaldamento autonomo senza ascensore
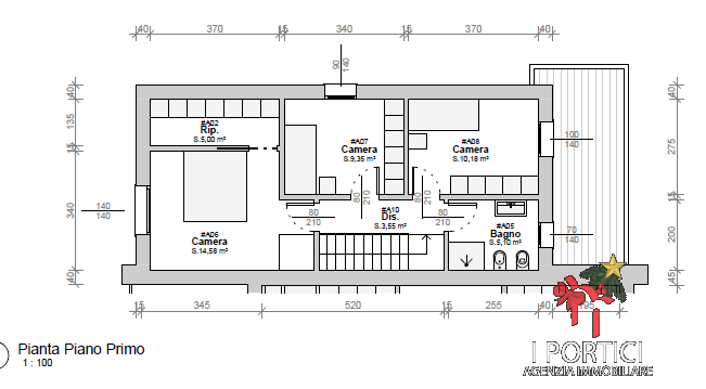
Zero Branco - Unità A - Nuovo intervento residenziale a Zero Branco In una zona tranquilla e residenziale di Zero Branco, comoda a tutti i principali servizi, proponiamo nuovo intervento abitativo di prossima realizzazione. Il fabbricato è composto da quattro unità completamente indipendenti: due porzioni di casa sviluppate su due livelli con giardino esclusivo sui tre lati e due appartamenti, uno al piano terra con giardino e uno al piano primo, quest'ultimo dotato di ampio terrazzo vivibile. La costruzione si distingue per l'utilizzo di materiali di alta qualità e tecnologie all'avanguardia, studiate per garantire elevato comfort abitativo, ottimo isolamento termoacustico e un alto livello di efficienza energetica. La porzione A si sviluppa su due piani. Al piano terra troviamo una luminosa zona giorno con ampia vetrata affacciata sul giardino privato, disimpegno, bagno e un ampio vano tecnico ad uso ripostiglio/lavanderia, collegato direttamente al garage. Al piano primo sono presenti un disimpegno, una camera matrimoniale con guardaroba, due camere singole e un bagno. Ogni unità è dotata di finiture di pregio da capitolato. Nel giardino esclusivo è possibile installare una pompeiana. Completa la proprietà un posto auto nello spazio comune esterno. Le immagini interne sono puramente indicative Metrature : - Zona giorno 39,91 mq. - Disimpegno 1,00 mq. - Bagno 5,49 mq. - Vano Tecnico 8,78 mq. - Disimpegno 3,55 mq. - Camera 14,58 mq. - Ripostiglio 5,00 mq. - Camera 9,36 mq. - Camera 10,18 mq. - Garage 24,95 mq. - Giardino 214 mq. Caratteristiche tecniche : - - Predisposizione allarme perimetrale e volumetrico - Riscaldamento a Pavimento - Pompa di calore - Predisposizione aria condizionata canalizzata - Impianto fotovoltaico - Serramenti in PVC - Tapparelle elettriche escluse vetrate - Basculante elettrico motorizzato Rif. : 06.ZER.A3 Prezzo : € 335.000,00 Sei interessato? Hai trovato la casa che desideravi da tanto tempo, ma hai bisogno di un mutuo per far avverare il tuo sogno? L'agenzia immobiliare I P[…]







