Valutazione immobiliare indipendente, accurata e gratuita

Casa indipendente in vendita a Zero Branco a 106.950 € (cod.64dce17f)

Caasa non ha sufficienti informazioni per commentare la casa indipendente in vendita a Zero Branco - 64dce17f.

Analisi immobiliare
I dati in posseso di Caasa per quest'immobile sono insufficienti, inaffidabili o contraddittori per proporre un'analisi attendibile.
Mercato immobiliare a Zero Branco
Per quanto riguarda più in generale il comune di Zero Branco, sono presenti al momento circa cento annunci per case indipendenti in vendita (meno del 5% dell'intera provincia) .

La dinamica dei prezzi in tutto il comune mostra che negli ultimi 6 mesi, i prezzi per case indipendenti in vendita sono in forte aumento (+10,37%).

NOVITÀ Il risultato che vedi dipende dai dati che siamo riusciti ad estrarre dall'annuncio: ottieni una stima più accuranta di questo immobile, inserendo dati più precisi.

N.B. L'Opinione di Caasa® è un servizio sperimentale realizzato tramite tecniche di Intelligenza Artificiale, fornito senza alcuna garanzia di correttezza e completezza. Leggi il disclaimer o segnalaci un problema.

IMMAGINI

IN SINTESI

Prezzo:
106.950 €
Superficie:
165 m²
Prezzo al m²:
648 €/m²
Piano:
n.d. (SENZA ascensore)
Bagni:
2
Classe energetica:
E
Città:
Zero Branco (TV)
Zona OMI:
B2 (ZONA CENTRALE)
Indirizzo:
Pubblicato:
lun 22 settembre 2025

PROPOSTO DA:

asteaffari.com

DESCRIZIONE

con posto auto con giardino con terrazza con termocondizionamento in asta giudiziaria con riscaldamento autonomo senza ascensore

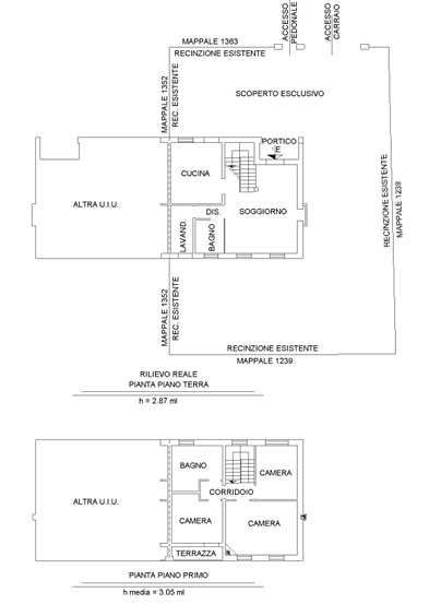
RIF. A.A.386-15 Vendita all'asta - porzione di bifamiliare in data 7 novembre 2025 Descrizione immobili : porzione di immobile residenziale del tipo bifamiliare, sviluppato su 2 livelli fuori terra con scoperto pertinenziale di 250 mq. Composta al piano terra da ingresso, soggiorno, cucina, lavanderia, wc, portico coperto e pergola; al piano primo n. 3 camere, bagno, corridoio e loggia. Superficie commerciale complessiva mq.165. Prezzo minimo base asta : da euro 106.950,00 L'immobile viene venduto tramite asta giudiziaria, ed il prezzo indicato si riferisce al prezzo minimo accettato per la partecipazione all'asta. Aste-Affari fornisce un servizio di assistenza e consulenza tecnica, legale, fiscale e finanziaria su acquisti all'asta e affari immobiliari, al fine di rendere più facile e sicuro l'acquisto di un immobile proveniente dal mercato giudiziario oppure da occasioni presenti sul mercato immobiliare. Analisi di fattibilità, tecnica, burocratica, finanziaria, legale, esame problematiche e vincoli, conteggio costi accessori ed occulti, assistenza in tutte le fasi della procedura fino alla consegna delle chiavi dell'immobile. L'acquisto può essere finanziato tramite mutuo, e, ove possibile anche in pre-asta tramite procedura di saldo-stralcio. Per info aggiuntive, prenotazione visione, consulenza ed assistenza su asta : Studio di Consulenza : "aste-affari.com" info: 04221781118 04221780185 www.aste-affari.com Sei un debitore ? Chiamaci ! Abbiamo soluzioni personalizzate anche per te

  • bachecacase.com
  • bancadellecase.it
  • bilocale.it
  • ioaffitto.it
  • trovacasa.net