Valutazione immobiliare indipendente, accurata e gratuita
Appartamento in vendita a Vittorio Veneto a 90.000 € (cod.656c819c)
Caasa non ha sufficienti informazioni per commentare l'appartamento in vendita a Vittorio Veneto - 656c819c.
Analisi immobiliare
I dati in posseso di Caasa per quest'immobile sono insufficienti, inaffidabili o contraddittori per proporre un'analisi attendibile.
Mercato immobiliare a Vittorio Veneto
Per quanto riguarda più in generale la città di Vittorio Veneto, sono presenti al momento più di 300 annunci per
appartamenti in vendita (meno del 5% dell'intera provincia) .
Per quanto riguarda la dinamica dei prezzi, negli ultimi 6 mesi i prezzi medi in tutta la città per appartamenti in vendita sono
in aumento (+3,80%).
NOVITÀ Il risultato che vedi dipende dai dati che siamo riusciti ad estrarre dall'annuncio: ottieni una stima più accuranta di questo immobile, inserendo dati più precisi.
N.B. L'Opinione di Caasa® è un servizio sperimentale realizzato tramite tecniche di Intelligenza Artificiale, fornito senza alcuna garanzia di correttezza e completezza. Leggi il disclaimer o segnalaci un problema.
IMMAGINI
IN SINTESI
PROPOSTO DA:
AGL BRESCIA
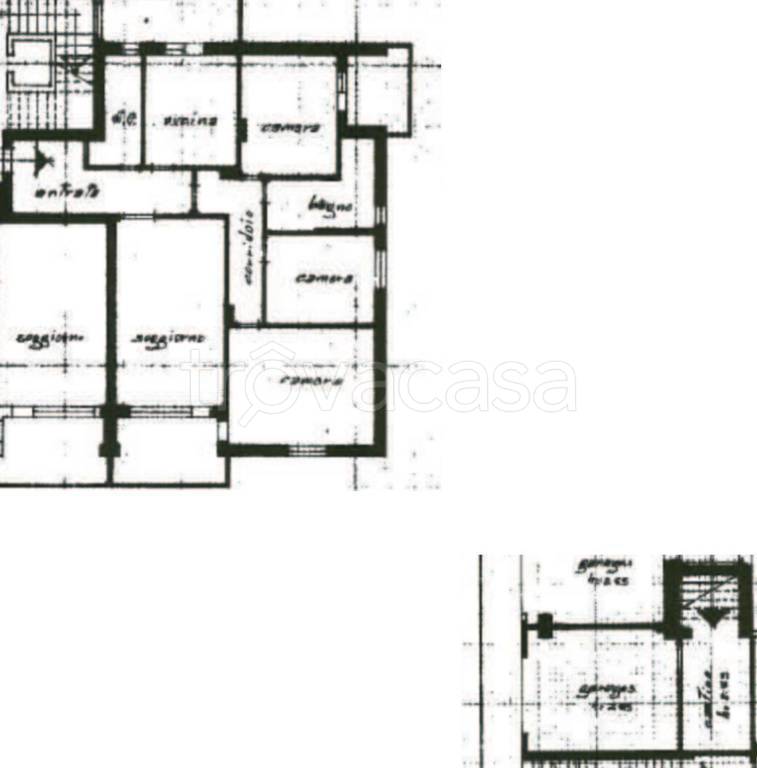
DESCRIZIONE
con posto auto con cantina con terrazza con garage in asta giudiziaria
Unità immobiliari facenti parte di un complesso condominiale denominato "Residenza Vittoria" sito nel Comune di Vittorio Veneto (TV), in Via Antonio Pigafetta (in Catasto Viale Giacomo Matteotti) n. 16, e precisamente nel fabbricato "C" appartamento […]
