Valutazione immobiliare indipendente, accurata e gratuita

L'Opinione di Caasa® per la casa indipendente in vendita a Vittorio Veneto a 395.000 € (cod.64f3945e)

Secondo Caasa, per la casa indipendente in vendita a Vittorio Veneto, la richiesta di 395.000 € è significativamente svantaggiosa rispetto agli annunci simili.

Analisi immobiliare
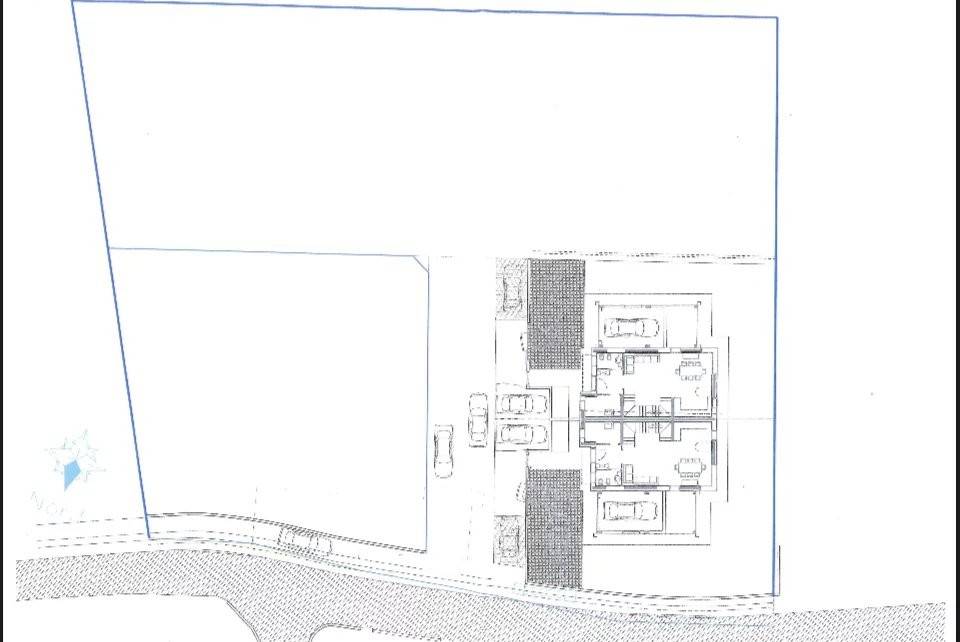
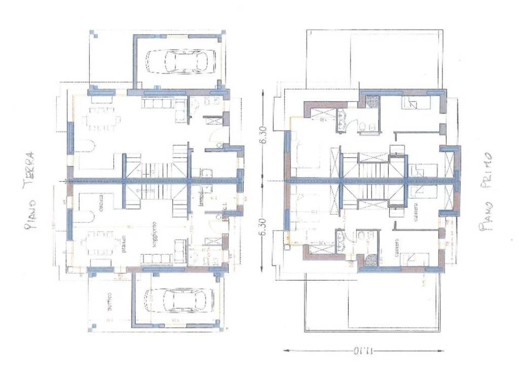
La casa indipendente, situata nella zona OMI B3, è proposta in vendita a 395.000 € per una superficie commerciale di 175 m² e quindi ad un prezzo per metro quadrato pari a 2257 €/m² .
Questo prezzo è meno vantaggioso di quello stimato da Caasa per immobili in vendita simili per tipologia e caratteristiche, presenti nella stessa zona, che è compreso tra 1.376 €/m² e 1.599 €/m². Data la posizione della casa indipendente sono stati utilizzati come raffronto i valori medi nelle zone limitrofe . Caasa non è stata in grado di determinare la classe energetica, ma ad affinare la stima ha contribuito però anche lo stato dell'immobile (di nuova costruzione). In virtù di queste considerazioni l'intervallo dei valori possibili per l'offerta è relativamente ampio.

Mercato immobiliare a Vittorio Veneto
Per quanto riguarda più in generale la città di Vittorio Veneto, sono presenti al momento più di 200 annunci per case indipendenti in vendita (meno del 5% dell'intera provincia) .

Possiamo inoltre considerare che in tutta la città negli ultimi 6 mesi, i prezzi per case indipendenti in vendita sono in forte aumento (+11,48%).

NOVITÀ Il risultato che vedi dipende dai dati che siamo riusciti ad estrarre dall'annuncio: ottieni una stima più accuranta di questo immobile, inserendo dati più precisi.

N.B. L'Opinione di Caasa® è un servizio sperimentale realizzato tramite tecniche di Intelligenza Artificiale, fornito senza alcuna garanzia di correttezza e completezza. Leggi il disclaimer o segnalaci un problema.

IMMAGINI

IN SINTESI

Prezzo:
395.000 €
Superficie:
175 m²
Prezzo al m²:
2257 €/m²
Piano:
n.d.
Bagni:
2
Classe energetica:
n.d.
Città:
Vittorio Veneto (TV)
Zona OMI:
B3 (ZONA CENTRALE)
Indirizzo:
Pubblicato:
ven 17 ottobre 2025

PROPOSTO DA:

SIM CITY

DESCRIZIONE

di nuova costruzione di nuova costruzione

Proponiamo villa bifamiliare al nuovo in zona San Giacomo di Veglia, Vittorio Veneto, in contesto residenziale, tranquillo e ben abitato. La villa si disporrà su due livelli terracielo. Al pian terre

  • immobiliare.it