Valutazione immobiliare indipendente, accurata e gratuita

Negozio in vendita a Vittorio Veneto a 65.195 € (cod.64eae5c3)

Caasa non ha sufficienti informazioni per commentare il negozio in vendita a Vittorio Veneto - 64eae5c3.

Analisi immobiliare
I dati in posseso di Caasa per quest'immobile sono insufficienti, inaffidabili o contraddittori per proporre un'analisi attendibile.
Mercato immobiliare a Vittorio Veneto
Per quanto riguarda più in generale la città di Vittorio Veneto, sono presenti al momento più di cento annunci per negozi in vendita (meno del 10% dell'intera provincia) .

Vedi altre informazioni direttamente su Mercato-Immobiliare.info

NOVITÀ Il risultato che vedi dipende dai dati che siamo riusciti ad estrarre dall'annuncio: ottieni una stima più accuranta di questo immobile, inserendo dati più precisi.

N.B. L'Opinione di Caasa® è un servizio sperimentale realizzato tramite tecniche di Intelligenza Artificiale, fornito senza alcuna garanzia di correttezza e completezza. Leggi il disclaimer o segnalaci un problema.

IMMAGINI

IN SINTESI

Prezzo:
65.195 €
Superficie:
129 m²
Prezzo al m²:
505 €/m²
Piano:
terra (SENZA ascensore)
Bagni:
1
Classe energetica:
C
Città:
Vittorio Veneto (TV)
Zona OMI:
B3 (ZONA CENTRALE)
Indirizzo:
Pubblicato:
lun 6 ottobre 2025

PROPOSTO DA:

asteaffari.com

DESCRIZIONE

con posto auto con garage con giardino con termocondizionamento in asta giudiziaria con riscaldamento autonomo senza ascensore

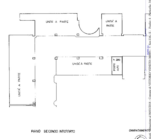
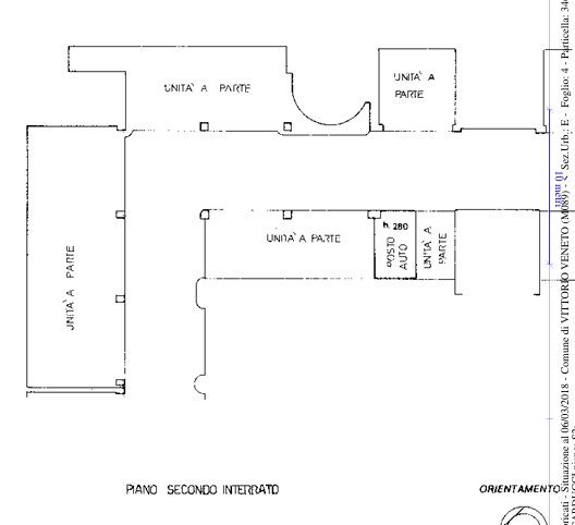
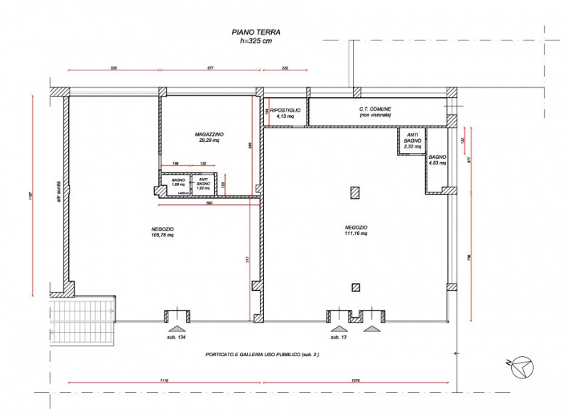
Rif. A.A.86-183 Vendita all'asta - negozio al piano terra in data 19 novembre 2025 Descrizione: trattasi di un'unità immobiliare ad uso commerciale sita nel Comune di Vittorio Veneto (TV), in Galleria Nazioni Unite n. 19, all'incrocio tra Via Div. N. Nanetti e Via G. Carducci. Al piano terra di un più ampio complesso denominato Condominio Agribella, l'unità sviluppa una superficie di circa mq. 129 catastali che comprendono l'area di vendita, un magazzino, il bagno e l'antibagno. Libera. Sono altresì inclusi nel lotto n. 2 posti auto, siti al secondo piano sottostrada e n. 1 magazzino al piano primo sottostrada. Prezzo minimo base asta : da euro 65.195,00 L'immobile viene venduto tramite asta giudiziaria, ed il prezzo indicato si riferisce al prezzo minimo accettato per la partecipazione all'asta. Aste-Affari fornisce un servizio di assistenza e consulenza tecnica, legale, fiscale e finanziaria su acquisti all'asta e affari immobiliari, al fine di rendere più facile e sicuro l'acquisto di un immobile proveniente dal mercato giudiziario oppure da occasioni presenti sul mercato immobiliare. Analisi di fattibilità, tecnica, burocratica, finanziaria, legale, esame problematiche e vincoli, conteggio costi accessori ed occulti, assistenza in tutte le fasi della procedura fino alla consegna delle chiavi dell'immobile. L'acquisto può essere finanziato tramite mutuo, e, ove possibile anche in pre-asta tramite procedura di saldo-stralcio. Per info aggiuntive, prenotazione visione, consulenza ed assistenza su asta : Studio di Consulenza : "aste-affari.com" info: 04221781118 04221780185 www.aste-affari.com Sei un debitore ? Chiamaci ! Abbiamo soluzioni personalizzate anche per te

  • bachecacase.com
  • bancadellecase.it
  • bilocale.it
  • ioaffitto.it