Valutazione immobiliare indipendente, accurata e gratuita
L'Opinione di Caasa® per l'ufficio in affitto a Villorba in zona Fontane a 500 € mese (cod.6546a780)
Secondo Caasa, per l'ufficio in affitto a Villorba in zona Fontane, la richiesta di 500 € mese è leggermente vantaggiosa rispetto agli annunci simili.
Analisi immobiliare
L'ufficio, situato nella zona OMI B1, è proposto in affitto a
500 € mese per una
superficie commerciale di
60 m² e quindi ad un prezzo per metro quadrato pari a
8,3 €/m²
.
Questo valore
è leggeremente più conveniente di quello stimato da Caasa per immobili in affitto simili per tipologia, caratteristiche, classe energetica e localizzati nella stessa zona OMI, che è compreso tra
8,8 €/m² mese e
9,4 €/m² mese.
La conoscenza con buona approssimazione della localizzazione dell'immobile ha consentito di utilizzare come raffronto i dati medi elaborati esattamente nella zona OMI di appertenenza (CENTRALE VILLORBA - CARITA` - FONTANE - CASTRETTE) per uffici (da 7,1 €/m² mese a 10,5 €/m² mese). Inoltre, Caasa ha potuto affinare la stima anche con la conoscenza della classe energetica (E) oltre che dello stato dell'immobile (di recente ristrutturazione). Per questi motivi è possibile considerare un intervallo di valori accettabili per l'offerta abbastanza limitato.
Mercato immobiliare a Villorba
Per quanto riguarda più in generale la città di Villorba, sono presenti al momento più di trenta annunci per
uffici in affitto (meno del 5% dell'intera provincia)
e il maggior numero di annunci per questa tipologia sono relativi alla zona di Lancenigo, mentre nella zona di Fontane è presente un numero significativamente inferiore di annunci.
Per quanto riguarda la richiesta media in zona Fontane, dove sorge l'ufficio, essa è pari a circa
8,9 €/m² mese per uffici in affitto.
Per quanto riguarda la dinamica dei prezzi, negli ultimi 6 mesi i prezzi medi in tutta la città per uffici in affitto sono
in deciso calo (-9,77%).
NOVITÀ Il risultato che vedi dipende dai dati che siamo riusciti ad estrarre dall'annuncio: ottieni una stima più accuranta di questo immobile, inserendo dati più precisi.
N.B. L'Opinione di Caasa® è un servizio sperimentale realizzato tramite tecniche di Intelligenza Artificiale, fornito senza alcuna garanzia di correttezza e completezza. Leggi il disclaimer o segnalaci un problema.
IMMAGINI
IN SINTESI
PROPOSTO DA:
MAURO BALDASSO
DESCRIZIONE
di recente ristrutturazione con termocondizionamento con riscaldamento autonomo da ristrutturare di recente ristrutturazione senza ascensore
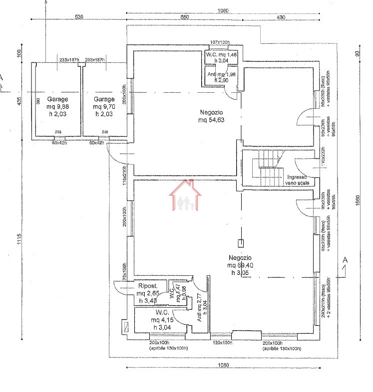
Rif.: PCL012 L'Agenzia immobiliare Luxor è lieta di presentare un'ottima opportunità per chi cerca uno spazio professionale nella vivace zona di Fontane, a Villorba. In affitto, proponiamo due uffici distinti al piano terra: uno di mq 60 e l'altro di mq 80. Entrambi gli spazi sono stati recentemente ristrutturati con finiture moderne che garantiscono un ambiente accogliente e funzionale. Situati in una posizione strategica, questi uffici beneficiano di un alto flusso pedonale e veicolare grazie alla loro collocazione su una strada principale. Questo li rende ideali non solo come ufficio ma anche come negozio per diverse attività commerciali. Inoltre, la presenza di parcheggi fronte strada facilita l'accesso ai clienti e ai dipendenti. I locali sono disponibili da gennaio, pronti ad ospitare le vostre idee imprenditoriali o il vostro team lavorativo. Approfittate della visibilità offerta dalla zona per far crescere il vostro business! Per ulteriori informazioni o per prenotare una visita all'immobile, vi invitiamo a contattare Paolo al numero 3488545745. Non perdete questa occasione unica nel cuore pulsante di Villorba! www.immobiliareluxor.it Per la tutela della privacy dei clienti intendiamo precisare che gli indirizzi presenti negli annunci non sono identificativi dell'ubicazione dell'immobile ma danno un riferimento solo generico della zona in cui si trova





