Valutazione immobiliare indipendente, accurata e gratuita
Terreno edificabile in vendita a Vedelago in zona Fanzolo a 125.000 € (cod.64dbea3f)
Caasa non ha sufficienti informazioni per commentare il terreno edificabile a Vedelago in zona Fanzolo - 64dbea3f.
Analisi immobiliare
I dati in posseso di Caasa per quest'immobile sono insufficienti, inaffidabili o contraddittori per proporre un'analisi attendibile.
Mercato immobiliare a Vedelago
Per quanto riguarda più in generale la città di Vedelago, sono presenti al momento più di venti annunci per
terreni edificabili in vendita (meno del 5% dell'intera provincia)
e il maggior numero di annunci per questa tipologia sono relativi alla zona di Albaredo, mentre nella zona di Fanzolo è presente un numero significativamente inferiore di annunci.
Vedi altre informazioni direttamente su
Mercato-Immobiliare.info
NOVITÀ Il risultato che vedi dipende dai dati che siamo riusciti ad estrarre dall'annuncio: ottieni una stima più accuranta di questo immobile, inserendo dati più precisi.
N.B. L'Opinione di Caasa® è un servizio sperimentale realizzato tramite tecniche di Intelligenza Artificiale, fornito senza alcuna garanzia di correttezza e completezza. Leggi il disclaimer o segnalaci un problema.
IMMAGINI
IN SINTESI
DESCRIZIONE
con posto auto con garage
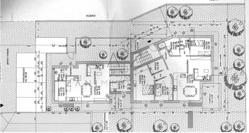
Per ulteriori informazioni:Consulente immobiliare Sara 348/8560225 Vedelago, frazione Fanzolo, proponiamo ampio terreno edificabile di circa 824 mq.Il progetto approvato prevede la costruzione di tre unità abitative con una volumetria totale di circa 1.199 mc, inclusi garage al piano interrato e un portico di 20 mq. La disposizione degli edifici è stata così progettata: la parte nord ospiterà un 'unità su due livelli completamente indipendente, mentre le altre due unità a sud saranno collocate in sovrapposizione (piano terra e piano primo). Entrambe le unità sud avranno anch 'esse garage al piano interrato e condivideranno un vano scala comune, garantendo un accesso agevole e pratico.In conformità con le normative vigenti, è prevista un 'area di manovra a nord, dedicata alla creazione di spazio per parcheggi, soddisfacendo così i requisiti stabiliti dalla Legge n. 122 del 24/03/89.Questa è un 'opportunità ideale per investitori o per chi desidera realizzare la propria abitazione in una zona tranquilla e ben servita. La posizione strategica e il progetto già approvato rendono questo terreno un 'opzione allettante per chiunque cerchi una soluzione residenziale su misura e dalle caratteristiche moderne





