Valutazione immobiliare indipendente, accurata e gratuita
L'Opinione di Caasa® per l'appartamento in vendita a Treviso in zona Centro Storico a 447.000 € (cod.6500b7e9)
Secondo Caasa, per l'appartamento a Treviso in zona Centro Storico, la richiesta di 447.000 € è significativamente vantaggiosa rispetto agli annunci simili.
Analisi immobiliare
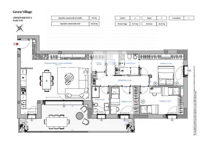
L'appartamento, situato vicino a San Liberale nella zona OMI B4, è proposto in vendita a
447.000 € per una
superficie commerciale di
125 m² e quindi ad un prezzo per metro quadrato pari a
3576 €/m²
.
Tale prezzo
è più conveniente di quello stimato da Caasa per immobili in vendita simili per tipologia, caratteristiche, classe energetica e localizzati nella stessa zona OMI, che è compreso tra
4.718 €/m² e
5.088 €/m².
La conoscenza con buona approssimazione della localizzazione dell'immobile ha consentito di utilizzare come raffronto i dati medi elaborati esattamente nella zona OMI di appertenenza (CENTRALE PREGIATA DELIMITATA DALLE MURA CINQUECENTESCHE) per appartamenti (da 2.165 €/m² a 4.185 €/m²). Inoltre, Caasa ha potuto affinare la stima anche con la conoscenza della classe energetica (A) oltre che dello stato dell'immobile (di nuova costruzione) e di alcune caratteristiche significative come il garage o la disponibilità di una cantina. Per queste ragioni i valori accettabili per l'offerta costituiscono un intervallo abbastanza limitato.
Mercato immobiliare a Treviso
Per quanto riguarda più in generale la città di Treviso, sono presenti al momento ben circa 2.000 annunci per
appartamenti in vendita (meno di un terzo dell'intera provincia)
e il maggior numero di annunci per questa tipologia sono relativi proprio alla zona di Centro Storico.
La richiesta media nella zona dove sorge l'appartamento (Centro Storico pressi San Liberale) è pari a
3.415 €/m² e ne fa la più pregiata della città .
Relativamente alla dinamica dei prezzi, possiamo dire che negli ultimi 6 mesi i prezzi medi in tutta la città per appartamenti in vendita sono
in aumento (+4,94%).
NOVITÀ Il risultato che vedi dipende dai dati che siamo riusciti ad estrarre dall'annuncio: ottieni una stima più accuranta di questo immobile, inserendo dati più precisi.
N.B. L'Opinione di Caasa® è un servizio sperimentale realizzato tramite tecniche di Intelligenza Artificiale, fornito senza alcuna garanzia di correttezza e completezza. Leggi il disclaimer o segnalaci un problema.
IMMAGINI
IN SINTESI
PROPOSTO DA:
IMPRESA S.R.L.
DESCRIZIONE
di nuova costruzione con posto auto con garage con terrazza di nuova costruzione con cantina con angolo cottura
Appartamento tre camere in vendita a Treviso.Nella prima periferia cittadina, proponiamo in vendita questo splendido appartamento posto al primo piano di un moderno e stiloso contesto condominiale in fase di costruzione, con consegna prevista ottobre/novembre 2025.L'immobile è cosi' distribuito: zona giorno/pranzo con angolo cottura di oltre 43 mq, disimpegno, tre camere letto di cui la principale con bagno personale, secondo bagno e lavanderia/ripostiglio. Splendida terrazza fruibile dalla zona giorno con ampio serramento scorrevole e da una camera. Completano la proposta il garage, il magazzino ed il posto auto assegnato in proprieta'.Di riferimento le dotazioni impiantistiche ed il livello delle finiture, tra cui: impianto a pavimento, fotovoltaico di ultima generazione, sistema per controllo impianti da remoto, videocitofono, ricambio d'aria con recupero di calore, predisposizione di ricariche auto elettriche. Pavimentazione in legno a listoni di rovere su tutto l'appartamento ad esclusione dei bagni. 4. Appartamento inserito in un polmone verde alle porte della citta'. Ampio capitolato descrittivo a disposizione presso le Ns agenzie.Per informazioni ed eventuali visite presso questo appartamento tre camere in vendita a Treviso chiamare il N. 0422/454323 con rif. I/LF280B4 oppure consultate il nostro sito www.impresaimmobillare.com






