Valutazione immobiliare indipendente, accurata e gratuita
Appartamento in vendita a Treviso in zona Centro Storico (cod.6433295b)
Caasa non ha sufficienti informazioni per commentare l'appartamento a Treviso in zona Centro Storico - 6433295b.
Analisi immobiliare
I dati in posseso di Caasa per quest'immobile sono insufficienti, inaffidabili o contraddittori per proporre un'analisi attendibile.
Mercato immobiliare a Treviso
Per quanto riguarda più in generale la città di Treviso, sono presenti al momento ben oltre 2.000 annunci per
appartamenti in vendita (meno di un terzo dell'intera provincia)
e il maggior numero di annunci per questa tipologia sono relativi proprio alla zona di Centro Storico.
La richiesta media nella zona dove sorge l'appartamento (Centro Storico pressi Piazza dei Signori) è pari a
3.460 €/m² e ne fa la più pregiata della città .
La dinamica dei prezzi in tutta la città mostra che negli ultimi 6 mesi, i prezzi per appartamenti in vendita sono
in aumento (+4,94%).
NOVITÀ Il risultato che vedi dipende dai dati che siamo riusciti ad estrarre dall'annuncio: ottieni una stima più accuranta di questo immobile, inserendo dati più precisi.
N.B. L'Opinione di Caasa® è un servizio sperimentale realizzato tramite tecniche di Intelligenza Artificiale, fornito senza alcuna garanzia di correttezza e completezza. Leggi il disclaimer o segnalaci un problema.
IMMAGINI
IN SINTESI
PROPOSTO DA:
IMPRESA S.R.L.
DESCRIZIONE
con posto auto con garage con terrazza con termocondizionamento con ascensore con riscaldamento autonomo
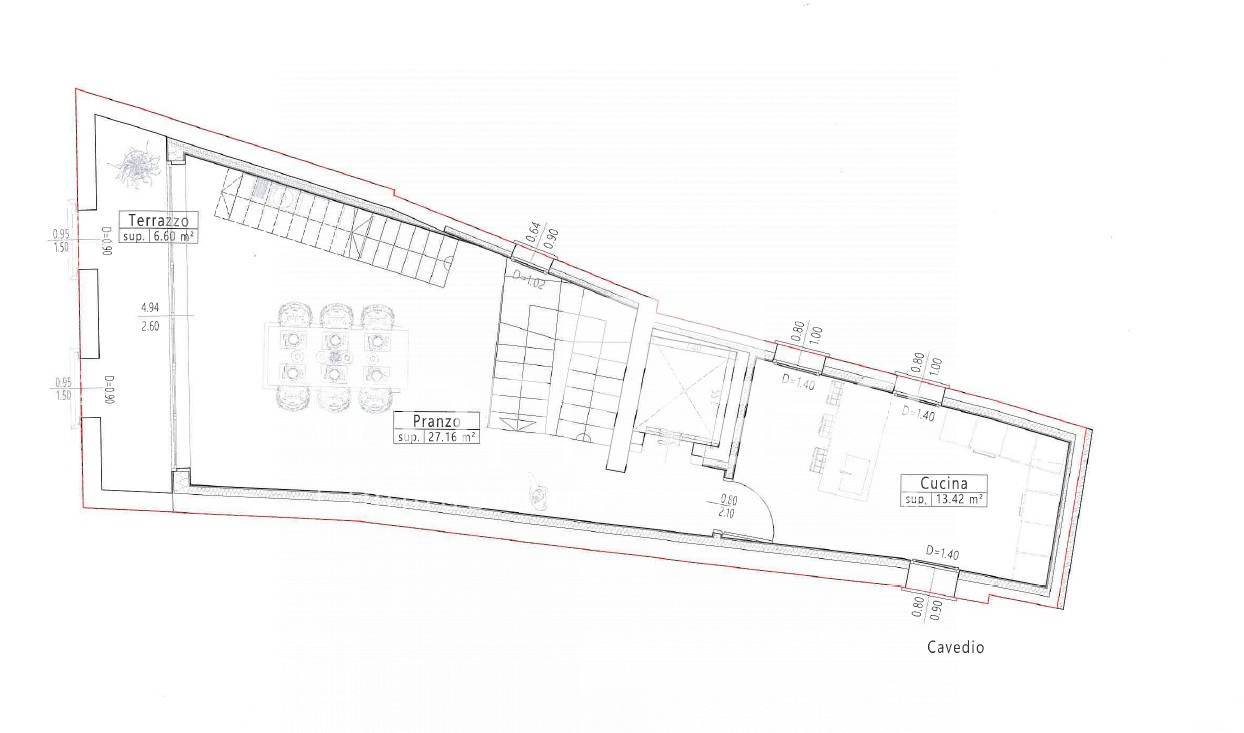
Treviso, centro storico, palazzetto indipendente con ampio garage e magazzino in vendita. Fra le innumerevoli proposte immobiliari ,oggi spicca questo Palazzo terra cielo , probabilmente risalente fra il fine " 700 e l"800 , che ci regala una soluzione abitativa molto speciale. Infatti ha tutte le caratteristiche che tutti Voi cercate e che poche volte si riesce a trovare sul mercato. Il costruttore, anche proprietario dell'immobile, ha voluto fortemente acquistare questo pezzo di storia Trivigiana a due passi da Piazza Duomo con tutte le potenziali caratteristiche di chi come Voi , desidera abitare il Centro Storico senza privarsi di alcuna comodit. E vediamo quali: magazzino/garage , cos comodo da imbarazzarecon ripostiglioCT e lavanderia ascensore dal garage fino alcielo!!! camera padronale con bagno e cabina armadio - dispegno - altra camera con relativo bagno al PRIMO PIANO ampia cameretta con il bagno dispegno riservato e ampio salotto per i comodi divani, la TV, la musica al SECONDO PIANO cucina d'altri tempi , separata da un piccolo corridoio/disimpegno e la sala pranzo dove il numero dei commensali non un problema......il piccolo terrazzo per le nostre piante. E siamo al TERZO PIANO e non finito? E noterrazza sui tetti di oltre 20mq per godere la magia della nostra Treviso in ogni stagione Immaginiamo che tutti questi piani via abbiano fatto venire "il fiatone" ma, se cos fosse, l'ASCENSORE li che vi aspetta , dal garage fino al "cielo". Crediamo di avervi soddisfatto e di aver esaudito ogni vostra richiesta. 316 mq di nuova vita a due passi dal Duomo, dalle scuole, dalle mura, dai negozi per fare la spesa e a 5 minuti dagli Aperitivi. La zona fra le pi caratteristiche di Treviso immersa nella storia cinquecentesca. Il prezzo di questo Palazzetto storico in restauro , oggi leggermente ribassato per le migliori condizioni delle materie prime, ha in se tutte le attuali comodit e tecnologie allo stesso prezzo di un bell'appartamento in un contesto per pi affollato. Passate a trovarci in Galleria del[…]




